NOYAL CHATILLON SUR SEICHE - Bâtiment à aménager en ville

Réf. 15a8d8b3 | Publiée le 23/10/2025 par INEO HABITAT - PGA Immobilier - Rennes | Mise à jour le 01/11/2025 | Visiteurs : 01
Photo NOYAL CHATILLON SUR SEICHE - Bâtiment à aménager en ville image 1/5
  • Prix
    147 000.00 €
  • Pays / Région
    France, Bretagne, Ille-et-Vilaine
  • Ville / Code postal
    Bourgbarré - 35230
  • Surface
    150 m²
  • Nombre de pièces

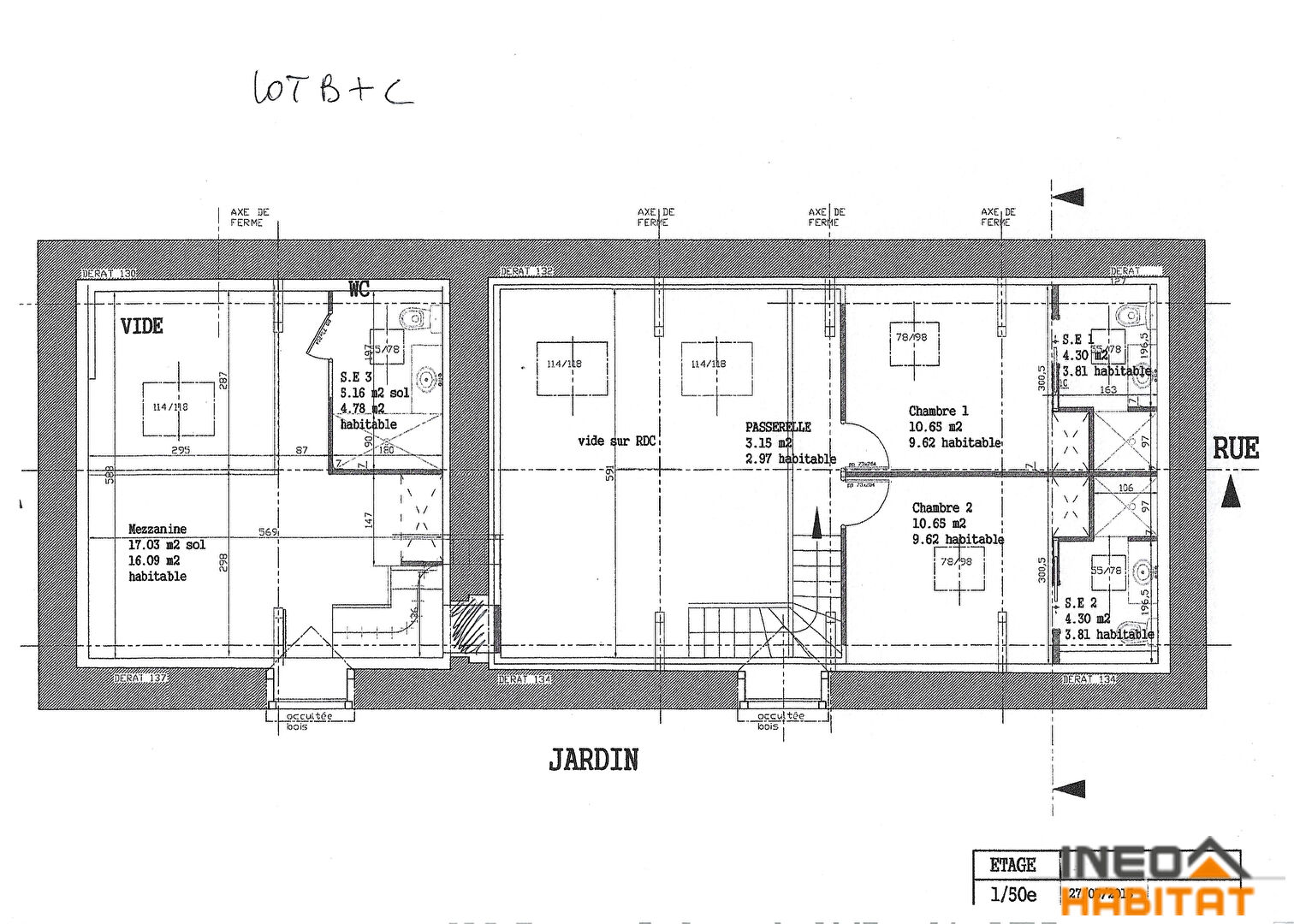
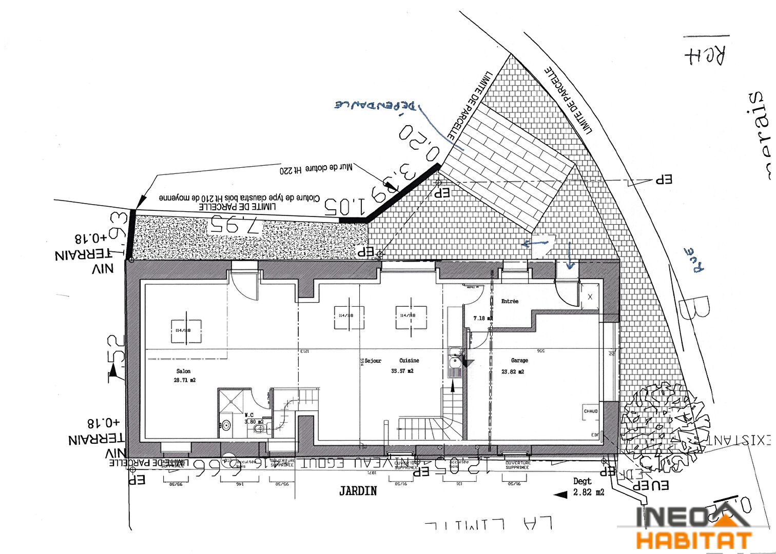
NOYAL CHATILLON SUR SEICHE - Longère d'environ 100m² au sol sur deux niveaux et sa petite dépendance à usage d'abri de jardin. En plein bourg, cette longère en pierre et terre attend de prendre vie comme maison d'habitation. Ancienne dépendance à usage de stockage, le bâtiment est en bon état mais nécessite un aménagement complet avec permis de construire. Elle bénéficie d'une cour orientée au sud. Un permis a été déposé pour sa rénovation, permis qui peut être repris en l'état ou modifié en en faisant la demande en mairie. La configuration et le permis déposés prévoient la création d'un garage accessible en pignon, d'un vaste espace de vie au RDC et de 3 chambres à l'étage. Les plans actuels proposent 150m² de surface habitable environ. Les travaux liés au permis de construire restent à effectuer, le bâtiment est actuellement nu, vide et sans AUCUN aménagement. Compteur électrique déjà installé, compteur d'eau à installer. (5.00 % honoraires TTC à la charge de l'acquéreur.)

 Faire suivre l'annonce
 Ajouter aux favoris
 Signaler l'annonce

Contacter l'annonceur par mail

Envoyer à
INEO HABITAT - PGA Immobilier - Rennes
Objet
Re: NOYAL CHATILLON SUR SEICHE - Bâtiment à aménager en ville
INEO HABITAT - PGA Immobilier - Rennes professionnel inscrit le 28/10/2025
Contacter par mail
Afficher le téléphone