MINIAC-MORVAN - Centre bourg, proche des commodités

Réf. 7c1e7557 | Publiée le 26/11/2025 par Maison Rouge - Agence de la Maison Rouge - Dinard | Mise à jour le 25/12/2025 | Visiteurs : 01
Photo MINIAC-MORVAN - Centre bourg, proche des commodités image 1/6
  • Prix
    269 999.00 €
  • Pays / Région
    France, Bretagne, Ille-et-Vilaine
  • Ville / Code postal
    Le Tronchet - 35540
  • Surface
    92 m²
  • Nombre de pièces

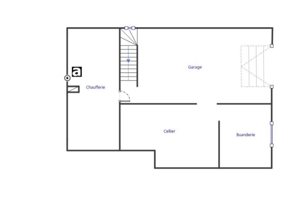
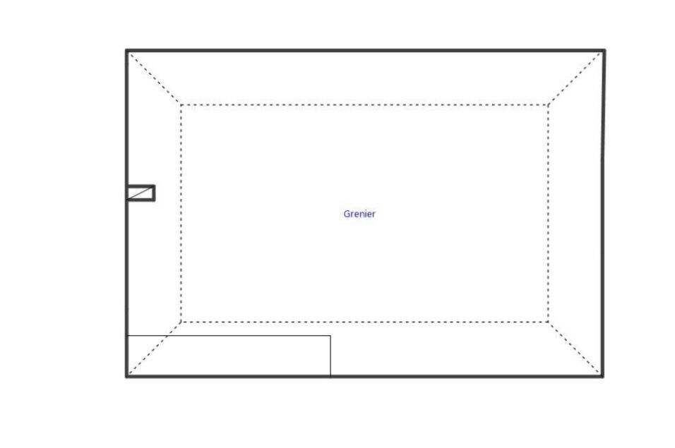
Maison non mitoyenne sur sous-sol comprenant une entrée desservant une cuisine indépendante aménagée et équipée, ainsi qu'une belle pièce de vie lumineuse avec cheminée insert. Un couloir mène à trois chambres spacieuses, une salle d'eau et des WC. A l'étage, un grenier offre un potentiel d'aménagement supplémentaire selon vos besoins. En sous-sol, la maison dispose d'un espace compartimenté idéal pour le stationnement, le stockage, un atelier et une chaufferie. L'ensemble est implanté sur un terrain clos de 1 100 m² env. avec cour de stationnement et un jardin paisible et agréable. Maison offrant de beaux volumes, des matériaux de qualités et un réel potentiel dans un secteur calme et aux pieds des commodités. Pour plus d'informations ou organiser une visite, contactez-nous. Prix FAI : 269 999 euros

 Faire suivre l'annonce
 Ajouter aux favoris
 Signaler l'annonce

Contacter l'annonceur par mail

Envoyer à
Maison Rouge - Agence de la Maison Rouge - Dinard
Objet
Re: MINIAC-MORVAN - Centre bourg, proche des commodités
Maison Rouge - Agence de la Maison Rouge - Dinard professionnel inscrit le 06/11/2021
Contacter par mail
Afficher le téléphone