Maison vendue sur plan de 85,80 m2 - Pouilley-Français

Réf. f68c4428 | Publiée le 20/05/2025 par Stéphane Plaza Immobilier Besançon - Stéphane Plaza Immobilier Besançon | Mise à jour le 23/11/2025 | Visiteurs : 07
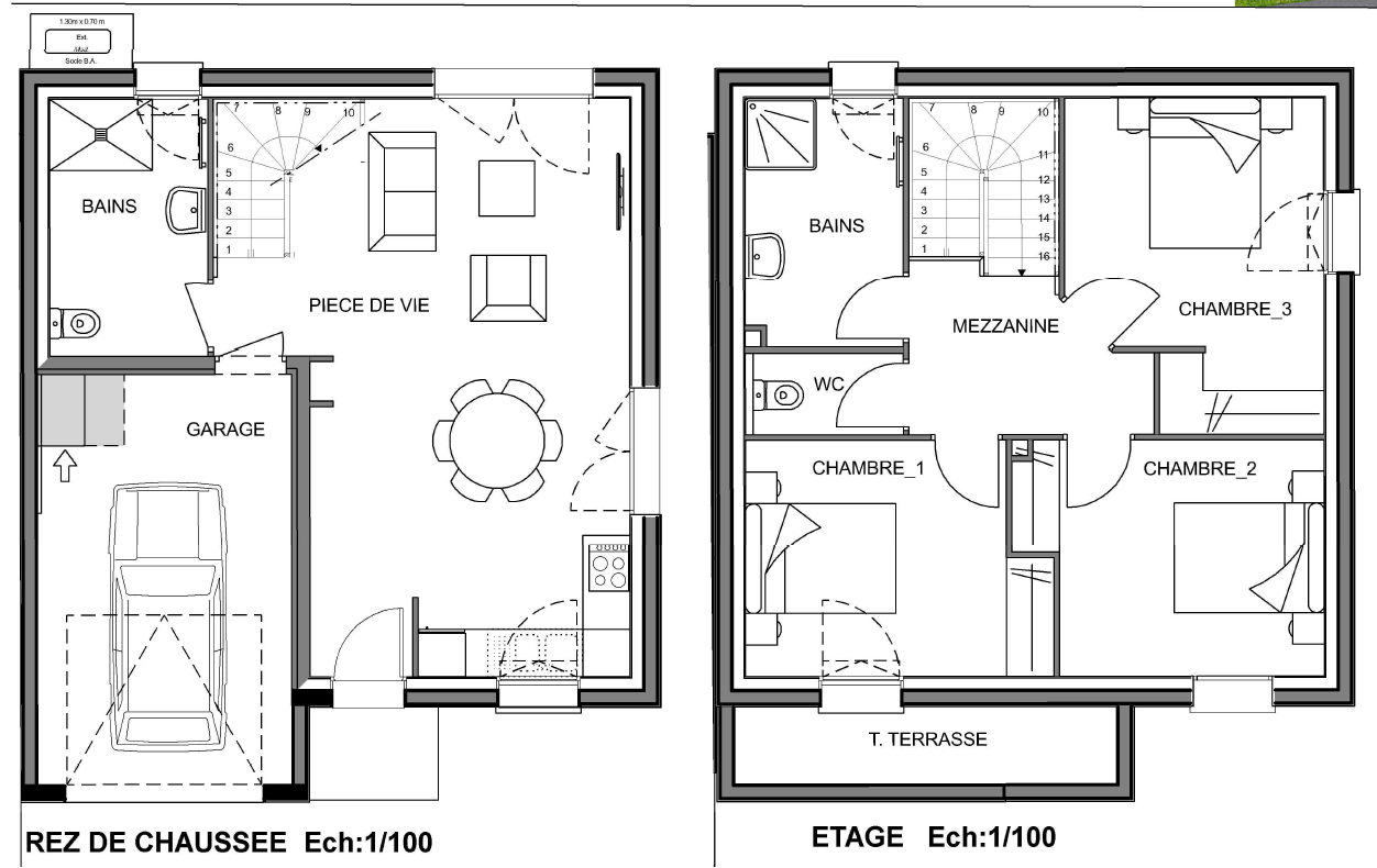
Photo Maison vendue sur plan de 85,80 m2 - Pouilley-Français image 1/3
  • Prix
    275 000.00 €
  • Pays / Région
    France, Franche-Comté, Doubs
  • Ville / Code postal
    Antorpe - 25410
  • Surface
    86 m²
  • Nombre de pièces

STÉPHANE PLAZA IMMOBILIER vous propose cette maison neuve de 85,80 m² livrée au 3è trimestre 2027, à POUILLEY-FRANÇAIS, avec jardin et terrasse, composée d'une pièce de vie de plus de 31 m² et d'une salle de bains. A l'étage, vous disposerez de 3 belles chambres et d'1 salle d'eau. Les plus de ce bien : un garage et un parking privatif inclus. Livraison au 3ème trimestre 2027. Copropriété de 8 lots - dont 4 lots habitation.(Pas de procédure en cours). Alessandra CORDIER (EI) Agent Commercial - Numéro RSAC : 894307958 - Besançon.

 Faire suivre l'annonce
 Ajouter aux favoris
 Signaler l'annonce

Contacter l'annonceur par mail

Envoyer à
Stéphane Plaza Immobilier Besançon - Stéphane Plaza Immobilier Besançon
Objet
Re: Maison vendue sur plan de 85,80 m2 - Pouilley-Français