Maison neuve Rocbaron 4 pièces 86.44 m2 sur 431m² de terrain

Réf. 4b780aa1 | Publiée le 04/07/2025 par SWEET HOME - SWEET HOME ROCBARON | Mise à jour le 12/11/2025 | Visiteurs : 04
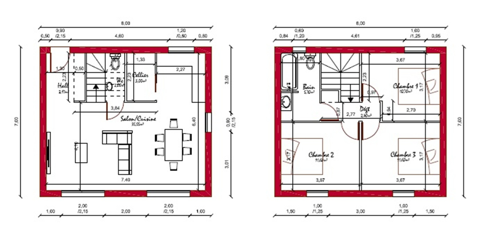
Photo Maison neuve Rocbaron 4 pièces 86.44 m2 sur 431m² de terrain image 1/3
  • Prix
    350 000.00 €
  • Pays / Région
    France, Provence-Alpes-Côte d'Azur, Var
  • Ville / Code postal
    Rocbaron - 83136
  • Surface
    86 m²
  • Nombre de pièces

Rocbaron, à vendre villa neuve de 86m² sur un terrain de 431m² Elevée sur deux niveaux, cette villa offre en son rez de chaussée un hall d'entrée, un espace de vie climatisé avec cuisine ouverte, un cellier ainsi qu'un W.C. indépendant. L'étage consacré à l'espace nuit, propose trois belles chambres, une salle de bains avec W.C. Frais de notaire réduit, garantie Dommage Ouvrage. Deux places de parking privatives sont à disposition. La livraison est prévue en 2026. Laurent RENERIC (EI) Agent Commercial - Numéro RSAC : 940829732 - Draguignan.

 Faire suivre l'annonce
 Ajouter aux favoris
 Signaler l'annonce

Contacter l'annonceur par mail

Envoyer à
SWEET HOME - SWEET HOME ROCBARON
Objet
Re: Maison neuve Rocbaron 4 pièces 86.44 m2 sur 431m² de terrain
SWEET HOME - SWEET HOME ROCBARON professionnel inscrit le 13/03/2020
Contacter par mail
Afficher le téléphone