Maison neuve à terminer selon vos envies

Réf. 1bdb34a8 | Publiée le 07/07/2025 par Cabinet House , Co - Cabinet House , Co | Mise à jour le 19/10/2025 | Visiteurs : 01
Photo Maison neuve à terminer selon vos envies image 1/6
  • Prix
    229 000.00 €
  • Pays / Région
    France, Provence-Alpes-Côte d'Azur, Vaucluse
  • Ville / Code postal
    Sorgues - 84700
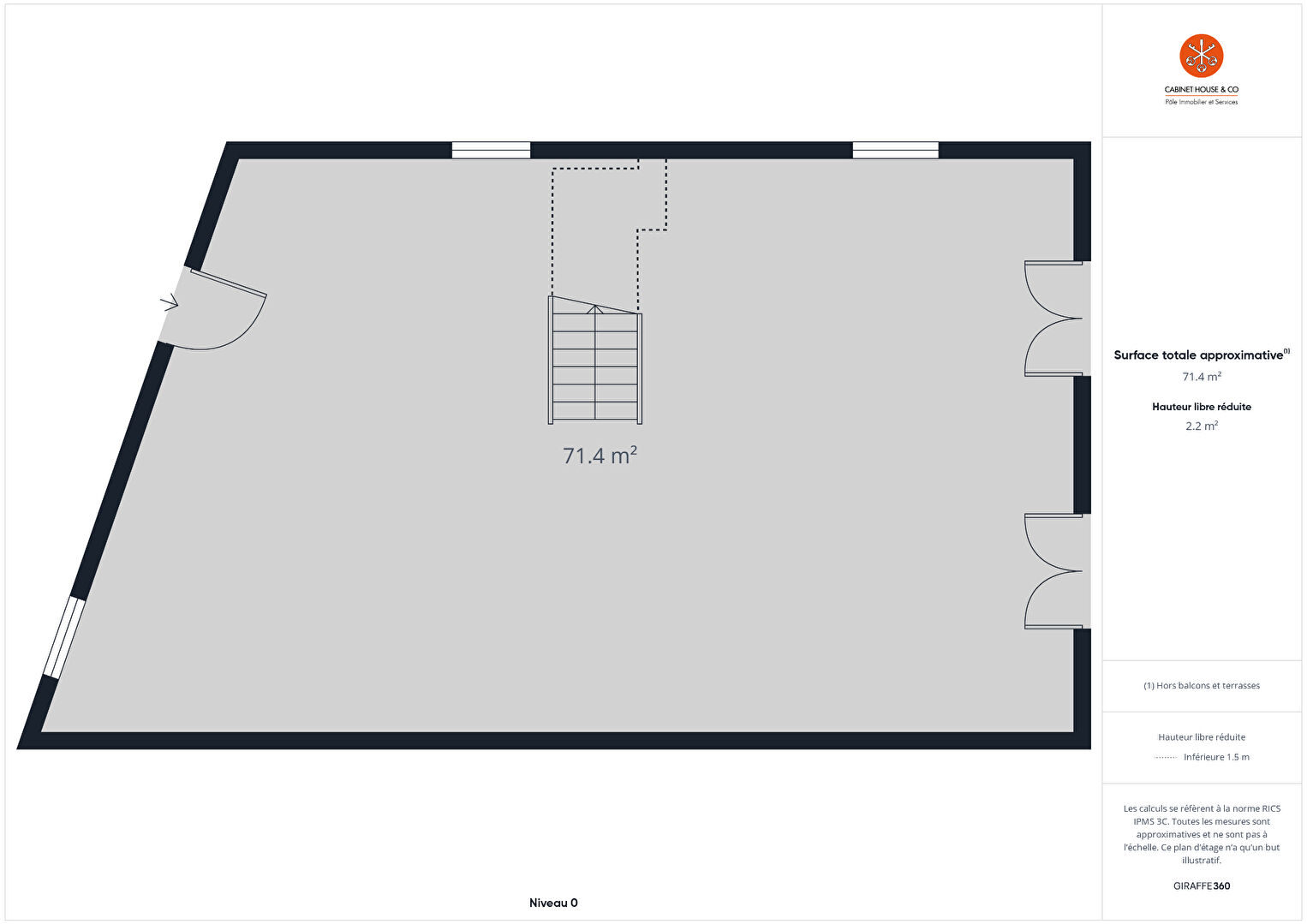
  • Surface
    110 m²
  • Nombre de pièces

NOUVEAU A LA VENTE EN EXCLUSIVITÉ // TRAVAUX EN COUR, FINITION A PERSONNALISER. VISITE VIRTUELLE DANS L'ANNONCE ! Située au coeur du centre ville de Sorgues, la maison est actuellement hors d'eau, hors d'air. Elle offre à ce stade la possibilité de choisir vos finitions selon vos goûts et votre budget. Structure et gros oeuvre terminés. Les propriétaires actuels, constructeurs de métier, peuvent finaliser les travaux à la demande. la présentation est la suivante: - au rez-de-chaussé, un grand séjour lumineux avec cuisine ouverte ainsi qu'une salle d'eau avec WC. - à l'étage, 3 chambres spacieuses ainsi qu'une salle de bain avec WC séparé. - extérieur privatif DOSSIER COMPLET SUR DEMANDE. Prix: 229000 euros, honoraire à la charge du vendeur Ref: MRHB1909 Les informations sur les risques auxquels ce bien est exposé sont disponibles sur le site Géorisques : www.georisques.gouv.com Mathilde RECHER (EI) Agent Commercial - Numéro RSAC : - .

 Faire suivre l'annonce
 Ajouter aux favoris
 Signaler l'annonce

Contacter l'annonceur par mail

Envoyer à
Cabinet House , Co - Cabinet House , Co
Objet
Re: Maison neuve à terminer selon vos envies
Cabinet House , Co - Cabinet House , Co professionnel inscrit le 19/11/2014
Contacter par mail
Afficher le téléphone