Maison Aix Les Bains 7 pièce(s) 162 m2

Réf. 514f39a7 | Publiée le 16/06/2025 par RivierAlp'Immo - RivierAlp'Immo | Mise à jour le 06/11/2025 | Visiteurs : 03
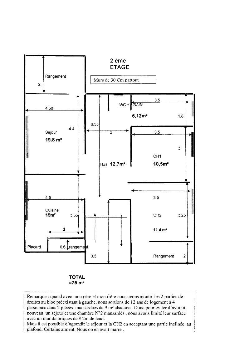
Photo Maison Aix Les Bains 7 pièce(s) 162 m2 image 1/6
  • Prix
    520 000.00 €
  • Pays / Région
    France, Rhône-Alpes, Savoie
  • Ville / Code postal
    Aix-les-Bains - 73100
  • Surface
    163 m²
  • Nombre de pièces

A Vendre : Spacieuse Maison de 2 Appartements à Aix-les-Bains - Quartier Prisé du Grand Port Prix : 520 000 euros Opportunité rare sur le secteur très recherché du Grand Port à Aix-les-Bains ! Venez découvrir cette maison de caractère de 1970, d'une surface totale de 162 m², plus sous sol érigée sur un terrain clos et arboré de 695 m². Idéalement située à quelques pas du lac du Bourget, cette propriété offre un cadre de vie entre ville et nature. Un bien, de multiples possibilités : Cette maison se compose de deux appartements distincts, offrant une flexibilité rare : Idéal pour un projet bi-familial : Chaque famille dispose de son espace de vie indépendant tout en partageant le plaisir d'un grand jardin. Excellent investissement locatif : La forte demande dans ce quartier touristique vous assure un rendement locatif attractif. Vous pouvez habiter un des appartements et louer le second, ou louer les deux unités. Grande maison familiale : Les deux appartements peuvent être réunis pour créer une vaste résidence principale, spacieuse et fonctionnelle. DESCRIPTION DU BIEN : Surface habitable totale : 162 m² Terrain : 695 m² clos, paysager et sans vis-à-vis, un véritable havre de paix. Année de construction : 1970 Statut : Vente en pleine propriété (pas de copropriété à créer, ni de charges de copropriété à prévoir). Les atouts qui font la différence : EMPLACEMENT : Située sur l'Avenue du Grand Port, vous bénéficiez d'un accès immédiat aux plages, au port, aux restaurants et à toutes les activités nautiques. Le centre-ville d'Aix-les-Bains, ses commerces et ses thermes sont accessibles en quelques minutes. Potentiel d'aménagement : Des travaux de rafraîchissement sont à prévoir, vous offrant ainsi l'opportunité de réaménager et de décorer les espaces à votre goût pour créer la maison de vos rêves. Luminosité : Profitez d'un environnement paisible et d'une belle luminosité tout au long de la journée. Cette maison représente une opportunité unique d'acquérir un bien avec un fort potentiel dans l'un des quartiers les plus convoités d'Aix-les-Bains. Ne laissez pas passer cette chance ! Contactez-nous dès aujourd'hui pour organiser une visite.

 Faire suivre l'annonce
 Ajouter aux favoris
 Signaler l'annonce

Contacter l'annonceur par mail

Envoyer à
RivierAlp'Immo - RivierAlp'Immo
Objet
Re: Maison Aix Les Bains 7 pièce(s) 162 m2
RivierAlp'Immo - RivierAlp'Immo professionnel inscrit le 24/07/2024
Contacter par mail
Afficher le téléphone