Maison 3 chambres, Vue, Immo Concept 44

Réf. 4c5295b6 | Publiée le 28/12/2023 par CREPY IMMOBILIER Bouaye - Immo Concept 44 | Mise à jour le 24/11/2025 | Visiteurs : 01
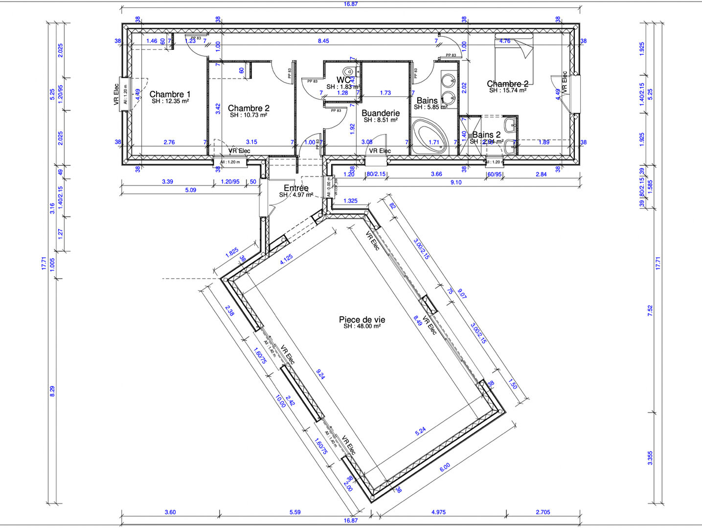
Photo Maison 3 chambres, Vue, Immo Concept 44 image 1/2
  • Prix
    211 000.00 €
  • Pays / Région
    France, Pays de la Loire, Loire-Atlantique
  • Ville / Code postal
    Vue - 44640
  • Surface
    123 m²
  • Nombre de pièces

Située dans un secteur calme et verdoyant, maison de plain-pied en cours de construction, elle sera vendue hors d'eau hors d'air. Permis de construire validé, possibilité 3 chambres dont une suite parentale. Les + : cuisine aménagée et équipée ainsi que les portes intérieur seront fournis. Le tout sur une parcelle d'environ 659m2 (5.50 % honoraires TTC à la charge de l'acquéreur.)

 Faire suivre l'annonce
 Ajouter aux favoris
 Signaler l'annonce

Contacter l'annonceur par mail

Envoyer à
CREPY IMMOBILIER Bouaye - Immo Concept 44
Objet
Re: Maison 3 chambres, Vue, Immo Concept 44
CREPY IMMOBILIER Bouaye - Immo Concept 44 professionnel inscrit le 25/10/2020
Contacter par mail
Afficher le téléphone