Saint Erblon - appartement 3 pièces 68.12m² Sud Ouest- 1er étage - balcon 8m² - ascenseur - garage

Réf. 827a2063 | Publiée le 02/11/2024 par Cabinet Moraine - Cabinet Moraine Immobilier | Mise à jour le 13/11/2025 | Visiteurs : 04
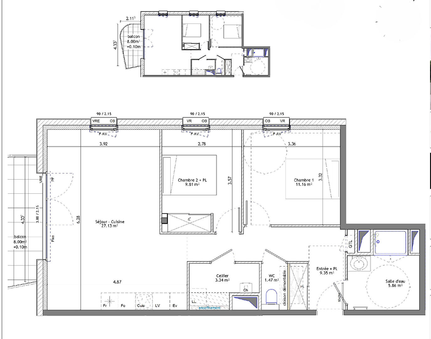
Photo Saint Erblon - appartement 3 pièces 68.12m² Sud Ouest- 1er étage - balcon 8m² - ascenseur - garage image 1/3
  • Prix
    282 000.00 €
  • Pays / Région
    France, Bretagne, Ille-et-Vilaine
  • Ville / Code postal
    Bourgbarré - 35230
  • Surface
    68 m²
  • Nombre de pièces

Saint-Erblon - Appartement 3 pièces de 68,12 m² avec balcon, exposition Sud-Ouest, au 1er étage avec ascenseur et garage sécurisé Situé dans une résidence contemporaine conforme aux normes RE2020, cet appartement offre un cadre de vie paisible et verdoyant, à proximité des commodités et des transports. D'une superficie de 68,12 m², il se trouve au premier étage et bénéficie d'une orientation Sud-Ouest. Ce bien se compose d'une entrée avec placard, d'un dégagement, d'un séjour lumineux avec cuisine ouverte donnant sur un balcon de 8 m², de deux chambres dont une avec placard, d'une salle d'eau, de WC indépendants et d'un cellier. Un garage en sous-sol sécurisé complète ce lot.- Les informations sur les risques auxquels ce bien est exposé sont disponibles sur le site Géorisques : www.georisques.gouv.fr. Photos non contractuelles - Suggestions d'aménagements Copropriété de 19 lots - dont 19 lots habitation. (Pas de procédure en cours). Charges annuelles : 979 euros.

 Faire suivre l'annonce
 Ajouter aux favoris
 Signaler l'annonce

Contacter l'annonceur par mail

Envoyer à
Cabinet Moraine - Cabinet Moraine Immobilier
Objet
Re: Saint Erblon - appartement 3 pièces 68.12m² Sud Ouest- 1er étage - balcon 8m² - ascenseur - garage
Cabinet Moraine - Cabinet Moraine Immobilier professionnel inscrit le 17/05/2019
Contacter par mail
Afficher le téléphone