RENNES - Appartement 1 pièce de 38.23m² - 4eme étage - ascenseur - terrasse de 13.48m²

Réf. ea322259 | Publiée le 18/04/2024 par Cabinet Moraine - Cabinet Moraine Immobilier | Mise à jour le 23/10/2025 | Visiteurs : 01
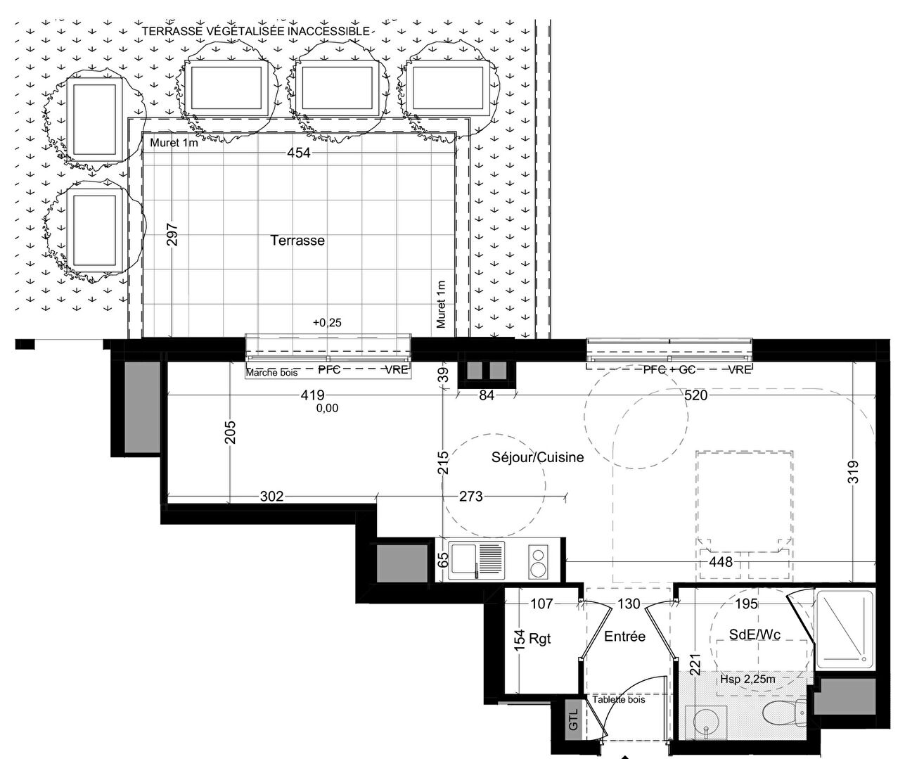
Photo RENNES - Appartement 1 pièce de 38.23m² - 4eme étage - ascenseur - terrasse de 13.48m² image 1/3
  • Prix
    249 000.00 €
  • Pays / Région
    France, Bretagne, Ille-et-Vilaine
  • Ville / Code postal
    Rennes - 35000
  • Surface
    38 m²
  • Nombre de pièces

RENNES - Proche centre ville - Appartement t1 de 38.23m² - 4eme étage - ascenseur - terrasse de 13.48m². idéalement située, proche du centre ville et à proximité de la gare, des arrêts de bus et du métro, (6 lignes de bus à proximité de la résidence - Ligne b du métro - stations Gare et Saint-Germain à 15 min à pied), dans une résidence contemporaine avec ascenseur, appartement 1 pièce de 38.23m² situé au 4ème étage comprenant : une entrée avec rangement, une grande pièce à vivre de 28.32m² avec cuisine ouverte, accès à la terrasse de 13.48m², coin nuit, salle d'eau avec wc. Prix promoteur - frais de notaire réduits - Les informations sur les risques auxquels ce bien est exposé sont disponibles sur le site Géorisques : www.georisques.gouv.fr. Photos non contractuelles - Suggestions d'aménagements Copropriété de 33 lots - dont 33 lots habitation. (Pas de procédure en cours). Charges annuelles : 550 euros.

 Faire suivre l'annonce
 Ajouter aux favoris
 Signaler l'annonce

Contacter l'annonceur par mail

Envoyer à
Cabinet Moraine - Cabinet Moraine Immobilier
Objet
Re: RENNES - Appartement 1 pièce de 38.23m² - 4eme étage - ascenseur - terrasse de 13.48m²
Cabinet Moraine - Cabinet Moraine Immobilier professionnel inscrit le 17/05/2019
Contacter par mail
Afficher le téléphone