RENNES - Appartement 1 pièce de 35.53m² - terrasse de 10.05m² - 1er étage - ascenseur

Réf. 9b302d79 | Publiée le 06/04/2025 par Cabinet Moraine - Cabinet Moraine Immobilier | Mise à jour le 23/10/2025 | Visiteurs : 01
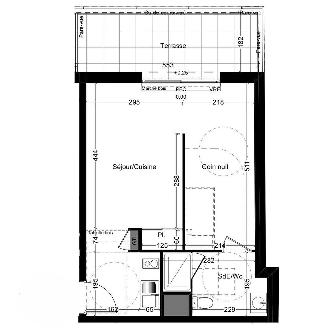
Photo RENNES - Appartement 1 pièce de 35.53m² - terrasse de 10.05m² - 1er étage - ascenseur image 1/2
  • Prix
    225 000.00 €
  • Pays / Région
    France, Bretagne, Ille-et-Vilaine
  • Ville / Code postal
    Rennes - 35000
  • Surface
    36 m²
  • Nombre de pièces

RENNES - St Hélier - Appartement 1 pièce de 35.53m² - terrasse de 10.05m² - 1er étage - ascenseur. Idéalement situé à St Hélier, à proximité des commerces, de la gare, des arrêts de bus et du métro, cet appartement bénéficie d'une excellente accessibilité aux lignes de bus à proximité. Au sein d'une résidence moderne avec ascenseur, cet appartement 1 pièce de 35.53 m², situé au 1er étage, offre un agencement fonctionnel. Il se compose d'un séjour salon avec cuisine ouverte, donnant accès à une terrasse de 10.05m², d'un coin nuit, d'une salle d'eau avec WC. Prix promoteur - frais de notaire réduits. Les informations sur les risques auxquels ce bien est exposé sont disponibles sur le site Géorisques : www.georisques.gouv.fr. Photos non contractuelles - Suggestions d'aménagements Copropriété de 33 lots - dont 33 lots habitation. (Pas de procédure en cours). Charges annuelles : 500 euros.

 Faire suivre l'annonce
 Ajouter aux favoris
 Signaler l'annonce

Contacter l'annonceur par mail

Envoyer à
Cabinet Moraine - Cabinet Moraine Immobilier
Objet
Re: RENNES - Appartement 1 pièce de 35.53m² - terrasse de 10.05m² - 1er étage - ascenseur
Cabinet Moraine - Cabinet Moraine Immobilier professionnel inscrit le 17/05/2019
Contacter par mail
Afficher le téléphone