Plateau à aménager - Plein centre

Réf. afa9bf7e | Publiée le 26/12/2025 par SÉLECTION IMMOBILIER - SÉLECTION IMMOBILIER Grezieu la Varenne | Mise à jour le 28/12/2025 | Visiteurs : 01
Photo Plateau à aménager - Plein centre image 1/3
  • Prix
    124 057.00 €
  • Pays / Région
    France, Rhône-Alpes, Rhône
  • Ville / Code postal
    Craponne - 69290
  • Surface
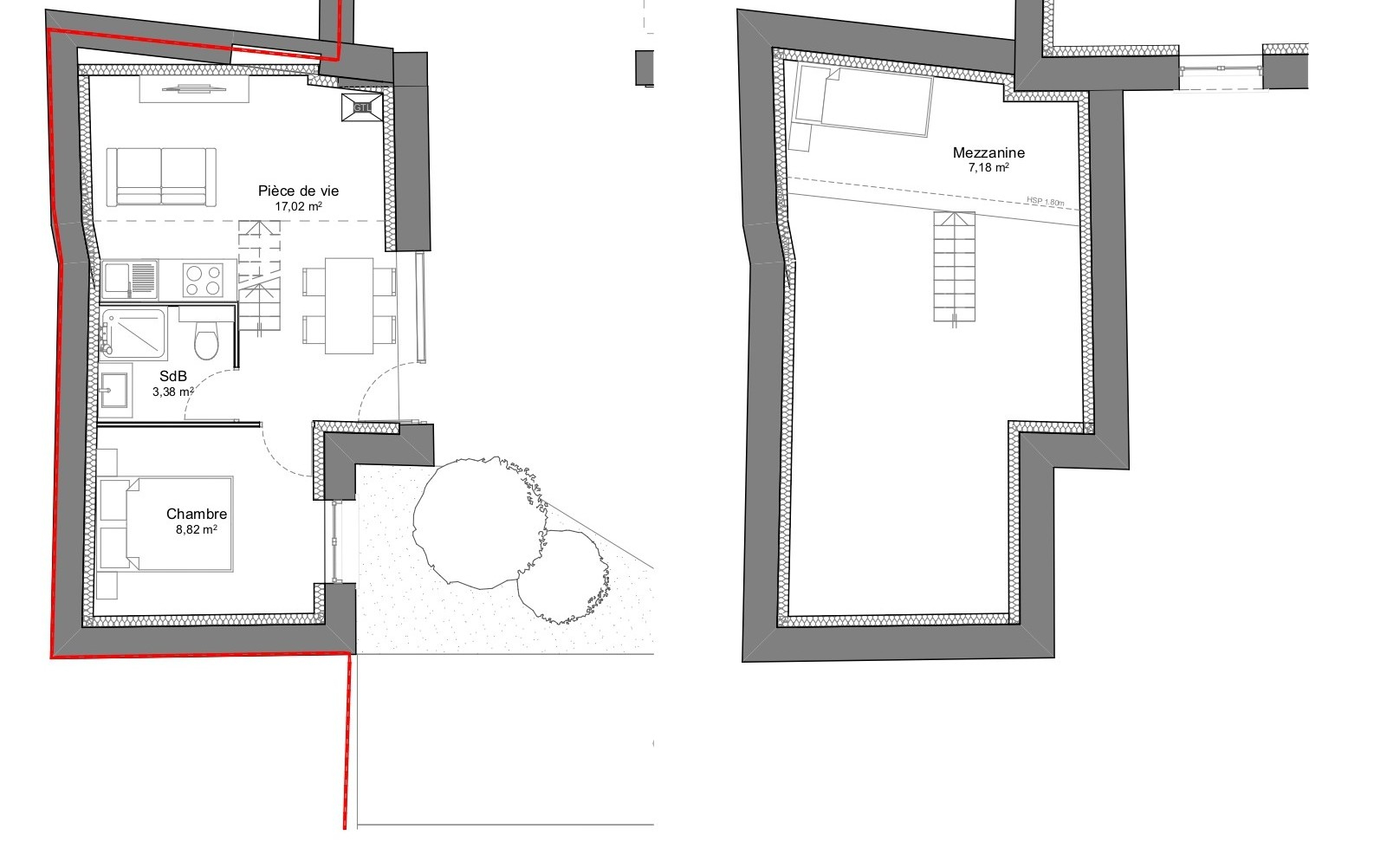
    29 m²
  • Nombre de pièces

Venez découvrir, plein centre, dans un petit immeuble ancien, un plateau à aménager d'env 29 m² + mezzanine d'env 7 m². Un devis - chiffrage pour l'aménagement est disponible, les parties communes seront rénovées par le vendeur. Ecoles, commerces, restaurants, transports accessibles à pied. Non soumis au DPE. Pour plus de renseignement : Votre agence Sélection Immobilier à Grezieu La Varenne au 04.37.20.05.82 Copropriété de 11 lots (Pas de procédure en cours). Charges annuelles : 520 euros.

 Faire suivre l'annonce
 Ajouter aux favoris
 Signaler l'annonce

Contacter l'annonceur par mail

Envoyer à
SÉLECTION IMMOBILIER - SÉLECTION IMMOBILIER Grezieu la Varenne
Objet
Re: Plateau à aménager - Plein centre
Contacter par mail
Afficher le téléphone