Paris 18ème - Marx Dormoy - Marché de l'Olive

Réf. 70c23dcc | Publiée le 09/09/2025 par L'IMMOBILIER PAR CHARLY Paris - L'IMMOBILIER PAR CHARLY | Mise à jour le 23/10/2025 | Visiteurs : 04
Photo Paris 18ème - Marx Dormoy - Marché de l'Olive image 1/6
  • Prix
    610 000.00 €
  • Pays / Région
    France, Île-de-France, Paris
  • Ville / Code postal
    Paris 18 Buttes-Montmartre - 75018
  • Surface
    92 m²
  • Nombre de pièces

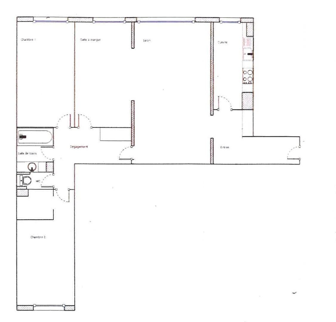
Paris 18ème - Métro Marx Dormoy - Idéalement situé dans le quartier ! (rue de l'Evangile) - Spacieux appartement familial de 92 m2 + 4 m2 de balcon. Il se compose d'une entrée avec placard, d'un beau séjour avec grande baie vitrée donnant sur le balcon, d'une cuisine aménagée et équipée indépendante mitoyenne au séjour, de 2 chambres dont une avec dressing, d'une salle de bain et d'un water-closet indépendant. (Traversant Est/Ouest) Situé dans une résidence des années 1970 de bon standing avec ascenseur, cave et gardien (chauffage et eau chaude compris dans les charges). Visitez-le ! (3.39 % honoraires TTC à la charge de l'acquéreur.) Copropriété de 572 lots - dont 190 lots habitation. (Pas de procédure en cours). Charges annuelles : 3900 euros. Teddy MASCRET (EI) Agent Commercial - Numéro RSAC : - .

 Faire suivre l'annonce
 Ajouter aux favoris
 Signaler l'annonce

Contacter l'annonceur par mail

Envoyer à
L'IMMOBILIER PAR CHARLY Paris - L'IMMOBILIER PAR CHARLY
Objet
Re: Paris 18ème - Marx Dormoy - Marché de l'Olive
Contacter par mail
Afficher le téléphone