 
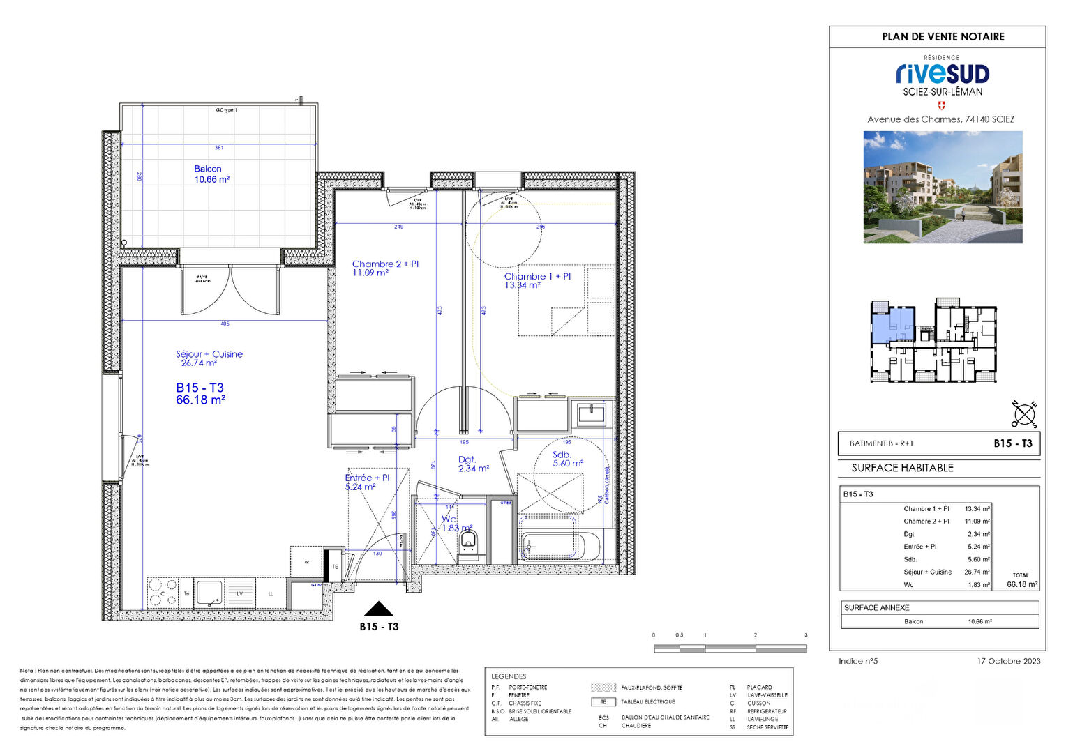
				Nouvelle résidence située aux abords immédiats du village de SCIEZ-SUR-LEMAN, proche du port et de la plage Au calme et à proximité des commerces et services, vous serez séduits par son coeur d'ilots paysagé, ses potagers partagés, son verger. Découvrez cet appartement T3 de 66.18m², comprenant une entrée, un dégagement, un séjour/cuisine, deux chambres, une salle de bains et un WC indépendant. Pour profiter de l'extérieur, un balcon de 10.66m². Pour d'avantage d'espace et faciliter le stationnement, deux places de parking et une cave sont inclus dans le prix. Découvrez encore plus d'annonces sur notre site www.sweethomeleman.fr Estimez également votre bien gratuitement et rapidement en ligne : https://www.sweethomeleman.fr/content/3/estimation.html Copropriété de 72 lots - dont 72 lots habitation.(Pas de procédure en cours).