 
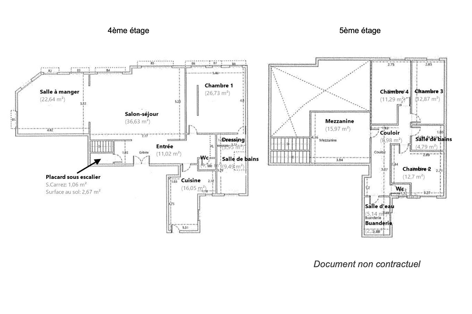
				A Auteuil Sud, à deux pas du métro Exelmans, ce duplex exceptionnel de 205,29 m² (203,68 m² loi Carrez) occupe les 4e et 5e étages avec ascenseur d'un élégant immeuble Art Déco de 1930. Rénové par architecte en 2019, il bénéficie en complément d'une double chambre de service aménagée en studio de 16 m², accessible par ascenseur au 8e étage, et d'une double cave de 16 m². Dès l'entrée, le séjour cathédrale impressionne par ses 5,90 m de hauteur sous plafond et ses deux grandes verrières toute hauteur, baignant l'espace de lumière naturelle et soulignant les volumes spectaculaires. La salle à manger attenante, séparée par une cloison vitrée esprit Mondrian, profite d'une double exposition. Chaque porte-fenêtre s'ouvre sur un balconnet, apportant une respiration supplémentaire et un charme indéniable. La cuisine indépendante, entièrement équipée, allie confort et praticité. Sur le même niveau, une vaste suite parentale comprend un dressing sur-mesure et une salle de bains en marbre. Des toilettes indépendantes complètent cet étage. L'escalier mène au 5e étage, où une mezzanine plongeante sur le séjour distribue trois chambres, deux salles de bains, plusieurs dressings, une buanderie et des toilettes indépendantes, formant un espace nuit idéal pour une famille. La copropriété de standing est sécurisée et entretenue avec gardienne. Ce duplex lumineux et atypique, avec volumes rares et rénovation haut de gamme, constitue une opportunité unique à Paris. Une adresse idéale pour les amateurs de biens d'exception alliant élégance, confort et singularité. Métro Exelmans (ligne 9) Contact : Gaël +33 7 65 88 07 14 Copropriété de 17 lots - dont 17 lots habitation. (Pas de procédure en cours). Charges annuelles : 14033 euros. GAËL CÉSAR (EI) Agent Commercial - Numéro RSAC : 842 215 162 - NANTERRE.