 
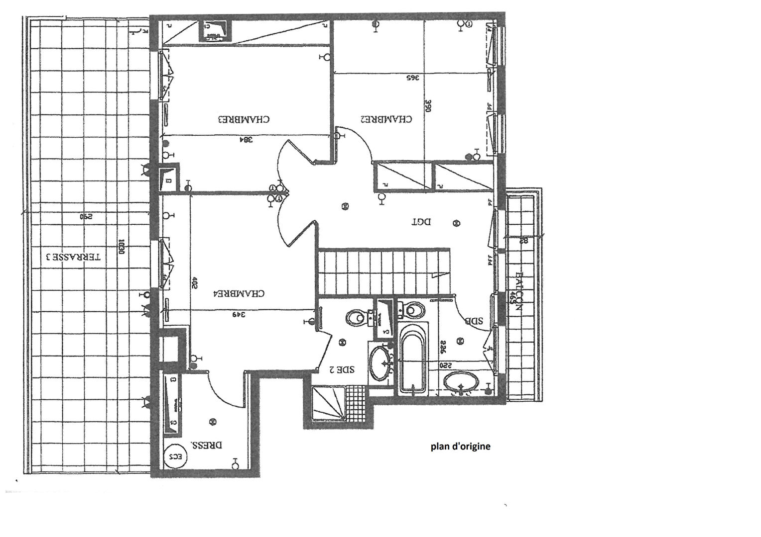
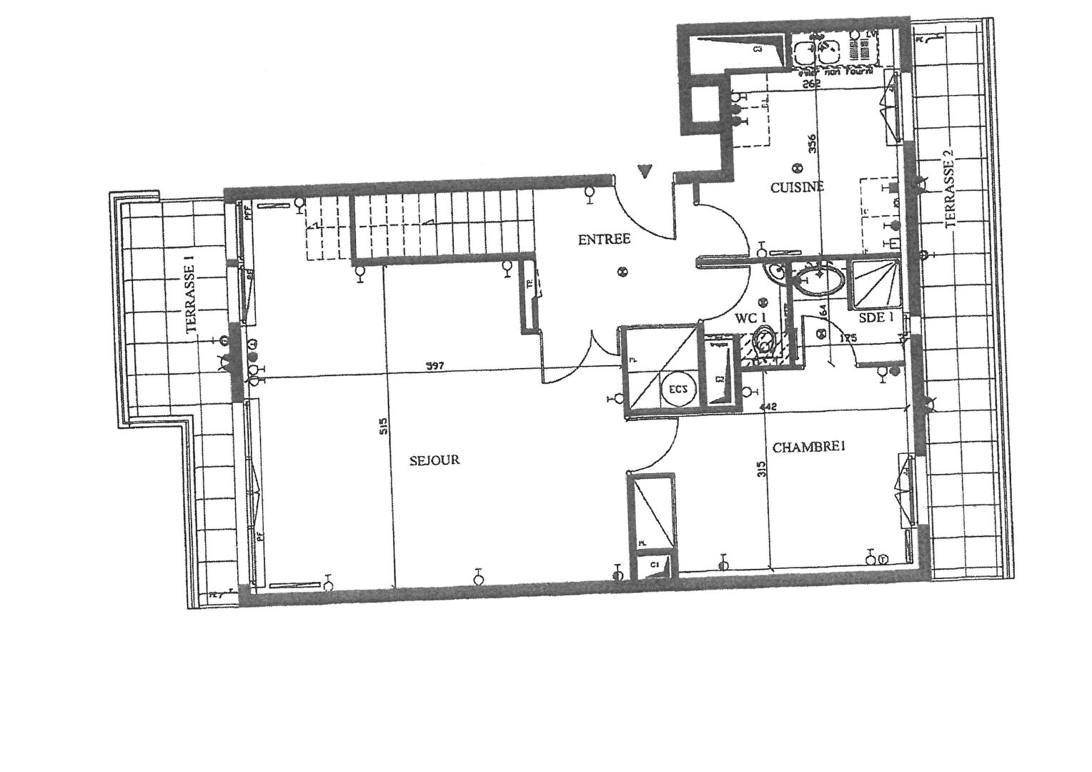
				COURBEVOIE CENTRE VILLE GARE APPARTEMENT 5 PIECES DE 126M² EN DUPLEX DERNIER ETAGE AVEC TERRASSES DANS UN RESIDENCE DE 2001. 1er niveau : Entrée, cuisine aménagée, séjour de 31m², chambre, salle d'eau, wc , TERRASSES 17m². Second niveau : salon de 34m² (possibilité de créer 2 chambres supplémentaires) , chambre, salle d'eau-wc, dressing, terrasse de 23m². En sous sol parking double et une cave. CLAIR, CALME, EXPOSÉ EST/OUEST. Au coeur des commerces, à proximité de la gare. (3.63 % honoraires TTC à la charge de l'acquéreur.) Copropriété de 334 lots - dont 91 lots habitation. (Pas de procédure en cours). Charges annuelles : 5270 euros.