Bordeaux DISPOSITIF ANRU Tva réduite à 5.5 % -T3 NEUF en VEFA appartement en duplex 3 pièces 75.08 m2 A ACHETER avec loggia, terrasse et parking privatif

Réf. ce9a11f3 | Publiée le 01/10/2022 par Immobiliere de Royan - IMMO CONSEIL AQUITAINE | Mise à jour le 02/12/2025 | Visiteurs : 01
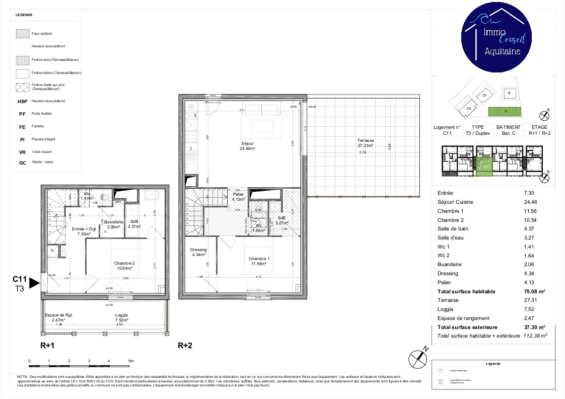
Photo Bordeaux DISPOSITIF ANRU Tva réduite à 5.5 % -T3 NEUF en VEFA appartement en duplex 3 pièces 75.08 m2 A ACHETER avec loggia, terrasse et parking privatif image 1/2
  • Prix
    298 917.00 €
  • Pays / Région
    France, Aquitaine, Gironde
  • Ville / Code postal
    Floirac - 33270
  • Surface
    75 m²
  • Nombre de pièces

Vous êtes éligible aux plafonds de ressources PSLA 2022 permettant d'accéder à cet investissement en RESIDENCE PRINCIPALE présenté au taux réduit de TVA à 5.5 % ? Ce programme sélectionné par l'Agence Nationale pour la Rénovation Urbaine ( ANRU) est fait pour vous ! BORDEAUX METROPOLE. Sur la rive droite de l'agglomération Bordelaise, dans le centre ville de Floirac (33270) et ses commerces, proche du quartier Bastide et à moins de 800 mètres du futur Pont Simone Veil et 10 minutes à vélo de la gare Saint Jean, au coeur d'un îlot paysager, au 1er étage d'une résidence neuve RT 2012, appartement en duplex de type 3 de 75.08 m2 offrant entrée et dégagement avec placard, toilettes indépendantes, buanderie, chambre avec salle de bains privative donnant accès à une loggia de 7.52 m2 orientée sud est et cellier extérieur. Au niveau supérieur par un escalier intérieur, palier, séjour avec cuisine à aménager donnant accès à une terrasse de 27 m2 orientée nord est avec vue privilégiée, toilettes indépendantes, 2eme chambre avec salle d'eau privative et dressing. Parking privatif en sous-sol. Local à vélos commun à la résidence. Livraison 4eme trimestre 2024. Frais d'acte réduits à 2.5 %. Autres LOTS DISPONIBLES du T3 au T5 mais aussi d'autres programmes neufs sur BORDEAUX et sa métropole ! Copropriété de 160 lots (Pas de procédure en cours). Charges annuelles : 1340 euros.

 Faire suivre l'annonce
 Ajouter aux favoris
 Signaler l'annonce

Contacter l'annonceur par mail

Envoyer à
Immobiliere de Royan - IMMO CONSEIL AQUITAINE
Objet
Re: Bordeaux DISPOSITIF ANRU Tva réduite à 5.5 % -T3 NEUF en VEFA appartement en duplex 3 pièces 75.08 m2 A ACHETER avec loggia, terrasse et parking privatif
Immobiliere de Royan - IMMO CONSEIL AQUITAINE professionnel inscrit le 18/06/2022
Contacter par mail
Afficher le téléphone