Appartement T4 - 80m2 - Jolimont

Réf. c834e9a2 | Publiée le 26/11/2025 par L'IMMOBILIERE DE RIQUET Toulouse - L'IMMOBILIERE DE RIQUET | Mise à jour le 27/12/2025 | Visiteurs : 02
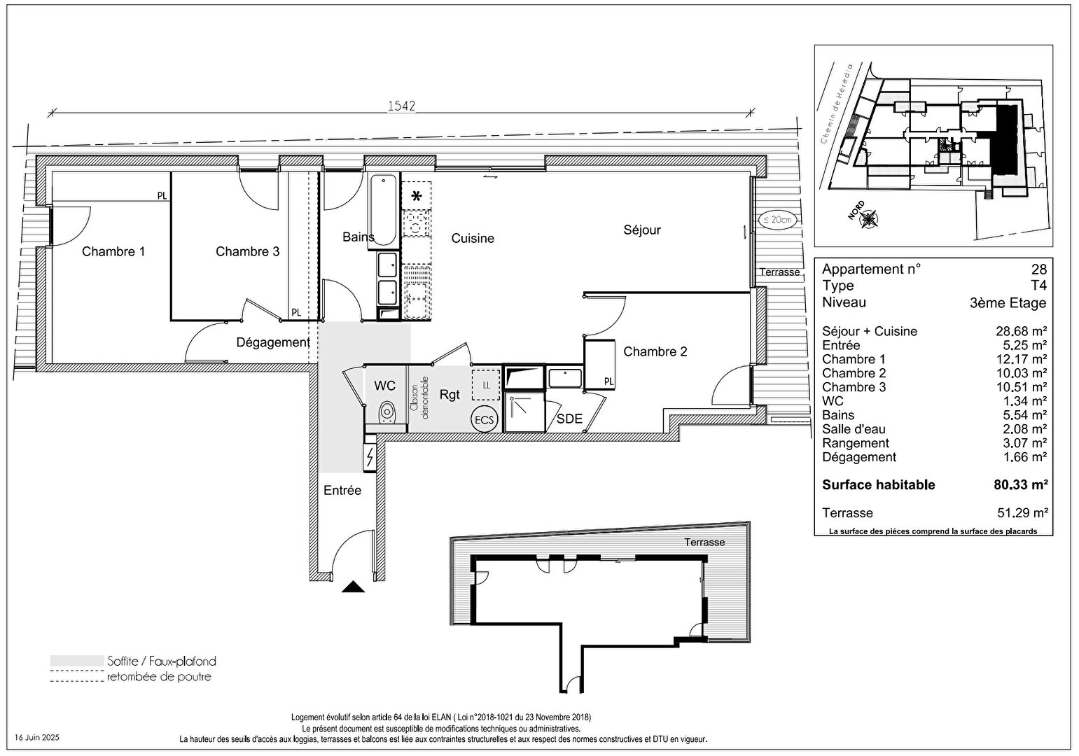
Photo Appartement T4 - 80m2 - Jolimont image 1/4
  • Prix
    339 900.00 €
  • Pays / Région
    France, Midi-Pyrénées, Haute-Garonne
  • Ville / Code postal
    Toulouse - 31500
  • Surface
    80 m²
  • Nombre de pièces

Magnifique Appartement T4 de 80m2 situé dans le quartier de Jolimont. Accession sous conditions de revenus. L'appartement dispose d'une terrasse de 52m2 avec une exposition plein Sud-Est. Un grand séjour/cuisine de 29m2. L'appartement vous offre trois belles chambres, une salle de bain et une salle d'eau, wc ainsi qu'une place de parking en sous-sol. Belles Prestations : Carrelage 45x45cm, peinture lisse, parquet stratifié, chauffage individuel par panneaux rayonnants électriques, volets roulants électriques. N'hésitez pas à me contacter, d'autres appartements sont disponibles. louisronchet@li2ri.fr 0766410963

 Faire suivre l'annonce
 Ajouter aux favoris
 Signaler l'annonce

Contacter l'annonceur par mail

Envoyer à
L'IMMOBILIERE DE RIQUET Toulouse - L'IMMOBILIERE DE RIQUET
Objet
Re: Appartement T4 - 80m2 - Jolimont
Contacter par mail
Afficher le téléphone