Appartement T2 LIMOGES

Réf. 386e3f73 | Publiée le 24/10/2025 par ABC IMMOBILIER - ABC IMMOBILIER | Mise à jour le 30/10/2025 | Visiteurs : 03
Photo Appartement T2 LIMOGES image 1/3
  • Prix
    83 545.00 €
  • Pays / Région
    France, Limousin, Haute-Vienne
  • Ville / Code postal
    Limoges - 87000
  • Surface
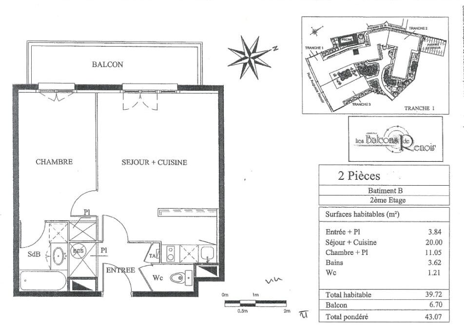
    40 m²
  • Nombre de pièces

A deux pas du centre ville et facs, dans résidence des années 2000 avec piscine, appartement T2 en bon état général comprenant une entrée avec placard , un séjour ouvrant sur balcon avec cuisine US équipée, une chambre avec rangement, une salle de bain, un WC séparé, une place de parking en sous-sol . Proche toutes commodités. Cet appartement est VENDU avec locataire en place.

 Faire suivre l'annonce
 Ajouter aux favoris
 Signaler l'annonce

Contacter l'annonceur par mail

Envoyer à
ABC IMMOBILIER - ABC IMMOBILIER
Objet
Re: Appartement T2 LIMOGES
ABC IMMOBILIER - ABC IMMOBILIER professionnel inscrit le 27/10/2025
Contacter par mail
Afficher le téléphone