Appartement Saint-Michel 6 pièces 157.10 m2

Réf. a3818c8b | Publiée le 10/03/2025 par Stéphane Plaza Immobilier Paris 5 - Stéphane Plaza Immobilier Paris 5 | Mise à jour le 13/11/2025 | Visiteurs : 01
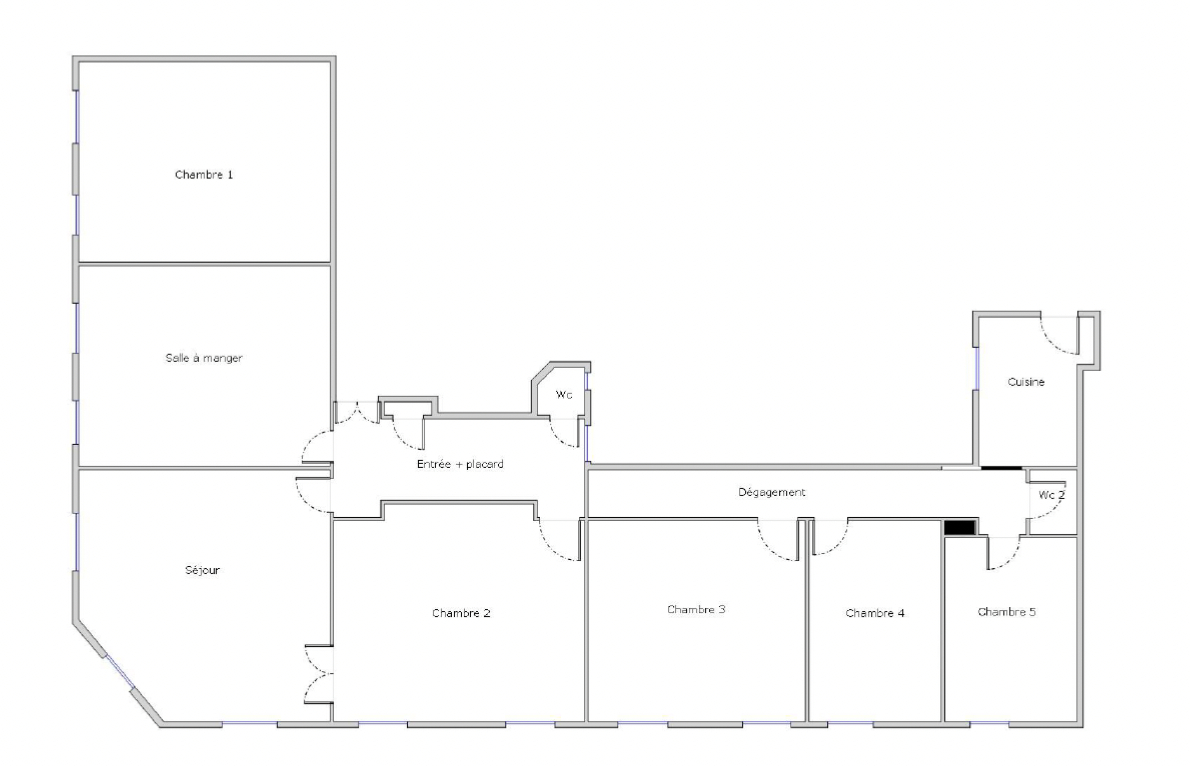
Photo Appartement Saint-Michel 6 pièces 157.10 m2 image 1/6
  • Prix
    2 235 000.00 €
  • Pays / Région
    France, Île-de-France, Paris
  • Ville / Code postal
    Paris 05 Panthéon - 75005
  • Nombre de pièces
  • Surface
    157 m²

Cluny-La Sorbonne - Boulevard Saint-Michel - Sectorisation Henri IV. Dans un bel immeuble haussmannien en parfait état, venez découvrir cet appartement familial d'exception de 6 pièces et 154,17 m² Carrez, actuellement aménagé en cabinet liberal. Il offre une entrée avec rangements, un vaste double séjour d'angle de 48 m² baigné de lumière, 5 chambres, une cuisine indépendante équipée et deux WC. Vous serez charmé par son emplacement privilégié, le cachet de l'ancien, ses volumes généreux et sa luminosité. Une cave vient compléter ce bien rare. A ne pas manquer. (3.00 % honoraires TTC à la charge de l'acquéreur.) Copropriété de 8 lots (Pas de procédure en cours). Charges annuelles : 5316.84 euros.

 Faire suivre l'annonce
 Ajouter aux favoris
 Signaler l'annonce

Contacter l'annonceur par mail

Envoyer à
Stéphane Plaza Immobilier Paris 5 - Stéphane Plaza Immobilier Paris 5
Objet
Re: Appartement Saint-Michel 6 pièces 157.10 m2
Contacter par mail
Afficher le téléphone