Appartement de type 2 entre Plage et Centre ville - Quartier Villes Martin à SAINT NAZAIRE

Réf. b263fcc9 | Publiée le 23/08/2024 par L'Adresse Carquefou - L'Adresse Carquefou | Mise à jour le 25/11/2025 | Visiteurs : 06
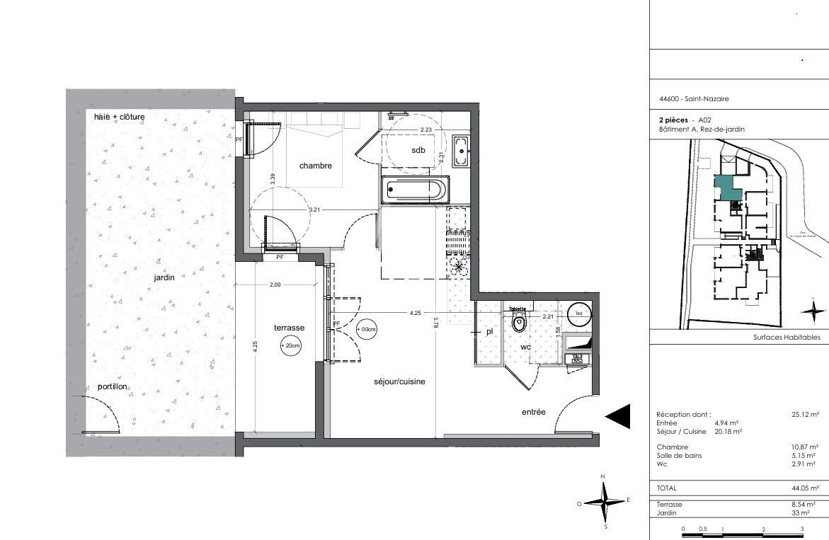
Photo Appartement de type 2 entre Plage et Centre ville - Quartier Villes Martin à SAINT NAZAIRE image 1/5
  • Prix
    235 000.00 €
  • Pays / Région
    France, Pays de la Loire, Loire-Atlantique
  • Ville / Code postal
    Saint-Nazaire - 44600
  • Surface
    44 m²
  • Nombre de pièces

A quelques pas des plages de Villès Martin t de sa base nautique, cette nouvelle construction offre un parfait équilibre entre tranquillité et animation urbaine. Vous y trouverez toutes les commodités y compris un arrêt de bus au pied pour rejoindre le centre ville en moins de 10 min et la gare en moins de 15 min. A VENDRE appartement Type T2 Neuf de 44,05m² comprenant un séjour cuisine de 20.18m² ouvert sur une terrasse de 8,54 et un jardin privatif de 33m² orienté Ouest, une chambre de 10,87m² et une salle de bains de 5,15m² et WC séparé. idéal résidence secondaire ou Résidence principale Label Energie RE2020 norme PMR (personne à mobilité réduite) Prix: 235 000 euros TTC (Prix direct promoteur) REF: 31637-MarinA02 "Les informations sur les risques auxquels ce bien est exposé sont disponibles sur le site Géorisques : www.georisques.gouv.fr" Copropriété de 38 lots - dont 38 lots habitation.(Pas de procédure en cours).

 Faire suivre l'annonce
 Ajouter aux favoris
 Signaler l'annonce

Contacter l'annonceur par mail

Envoyer à
L'Adresse Carquefou - L'Adresse Carquefou
Objet
Re: Appartement de type 2 entre Plage et Centre ville - Quartier Villes Martin à SAINT NAZAIRE
L'Adresse Carquefou - L'Adresse Carquefou professionnel inscrit le 23/12/2017
Contacter par mail
Afficher le téléphone