 
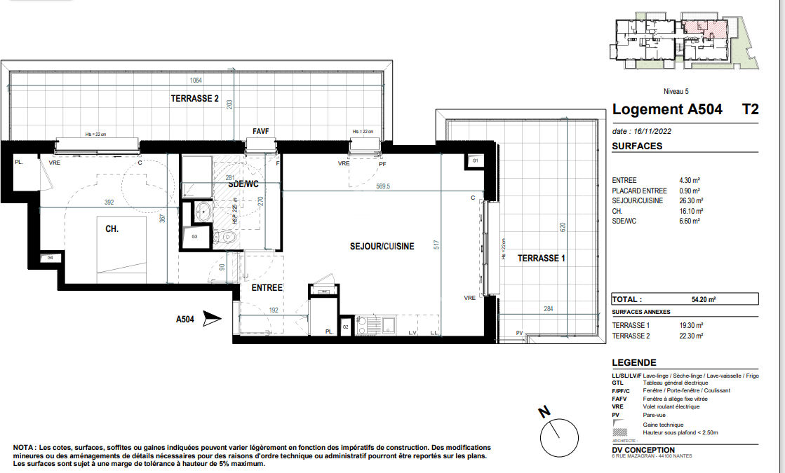
				Nouvelle résidence en centre ville de Saint Nazaire, appartements de type 1 au Type 5 . Idéalement situé à moins de de 5 min à pied du parc paysagé , 200m d'une supérette et à 10 min à pied des rues commerçantes du centre ville et du centre commercial Ruban bleu. Vous rejoignez la grande plage de St Nazaire en moins de 15 min à pied. Bus U4 et Hélice , arrêt soleil levant à 200m (vers centre ville et gare). A VENDRE appartement de type 2 de 54,20m² comprenant un séjour cuisine de 26,30m² exposé EST ouvert sur deux grandes terrasses de 22,30 et 19,30m² une chambre de 16,10m², une salle d'eau et WC. Une place de parking privative en sous-sol complète les lieux . Label Energie RT 2012 norme PMR (personne à mobilité réduite) Prix: 288 000 euros TTC (+ frais notaire réduits 2.5%) Prix direct promoteur REF: 31528ET-A504 "Les informations sur les risques auxquels ce bien est exposé sont disponibles sur le site Géorisques : www.georisques.gouv.fr" Copropriété de 86 lots - dont 86 lots habitation.(Pas de procédure en cours).