APPARTEMENT A VENDRE TYPE 3 DE 70M2 AVEC GARAGE ET PLACE DE STATIONNEMENT PRIVATIVE

Réf. b31c3b76 | Publiée le 14/12/2023 par DAUPHINE TRANSACTIONS Heyrieux - DAUPHINE TRANSACTIONS | Mise à jour le 16/11/2025 | Visiteurs : 03
Photo APPARTEMENT  A VENDRE TYPE 3  DE 70M2 AVEC GARAGE ET PLACE DE STATIONNEMENT PRIVATIVE image 1/6
  • Prix
    249 000.00 €
  • Pays / Région
    France, Rhône-Alpes, Isère
  • Ville / Code postal
    Septème - 38780
  • Surface
    70 m²
  • Nombre de pièces

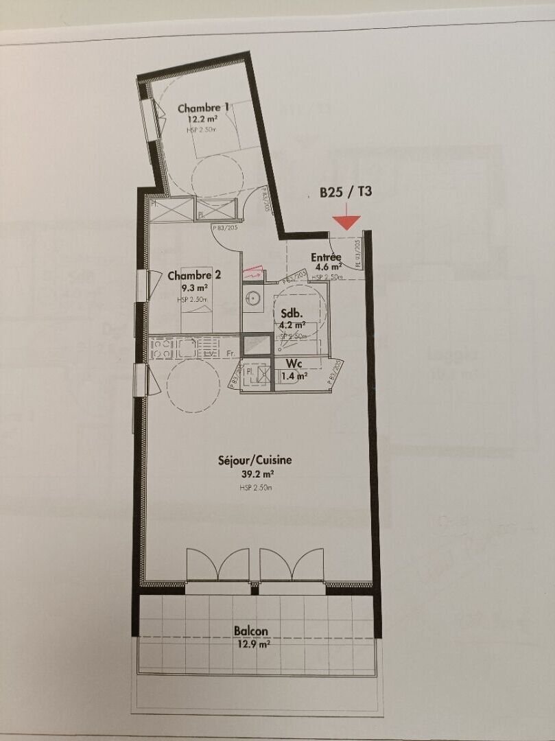
SEPTEME : L'agence Dauphiné transactions a le plaisir de vous présenter en plein coeur du village ,un appartement de type 3 de 70 m2 avec terrasse de 18.3 m2 ( B 15 ) , garage et place de stationnement privative . A proximité des commerces et des écoles . CARACTERISTIQUES : Surface habitable 70 m2 terrasse de 18.3 m2 Entrée 4.5 m2 Séjour/cuisine 38.6 m2 toilettes 1.4 m2 dégagement de 2.7 m2 salle de bain 4.2 m2 chambre 1 de 12.20 m2 avec placard chambre 2 de 9.1 m2 avec placard chambre 3 de 9.2 m2 avec placard au 2ème étage/2 Exposition OUEST Ascenseur PRESTATIONS : Chauffage PAC Menuiseries en PVC et Alu volets battants en bois lasuré Sèche serviette Carrelage dans les pièces principales (choix du client ) Parquet dans les chambres (choix du client ) Isolation phonique et thermique Fibre optique Vidéophone, badge, Vigik Prêt à taux zéro Contacter Karine COMMISSAIRE 0622991303 pour plus de renseignements Copropriété de 19 lots (Pas de procédure en cours).

 Faire suivre l'annonce
 Ajouter aux favoris
 Signaler l'annonce

Contacter l'annonceur par mail

Envoyer à
DAUPHINE TRANSACTIONS Heyrieux - DAUPHINE TRANSACTIONS
Objet
Re: APPARTEMENT A VENDRE TYPE 3 DE 70M2 AVEC GARAGE ET PLACE DE STATIONNEMENT PRIVATIVE
DAUPHINE TRANSACTIONS Heyrieux - DAUPHINE TRANSACTIONS professionnel inscrit le 15/10/2020
Contacter par mail
Afficher le téléphone