Appartement 2 pièces de 43 m² avec terrasse et 2 parkings

Réf. 1da98e4d | Publiée le 11/09/2025 par AIXTY - AIXTY | Mise à jour le 05/12/2025 | Visiteurs : 04
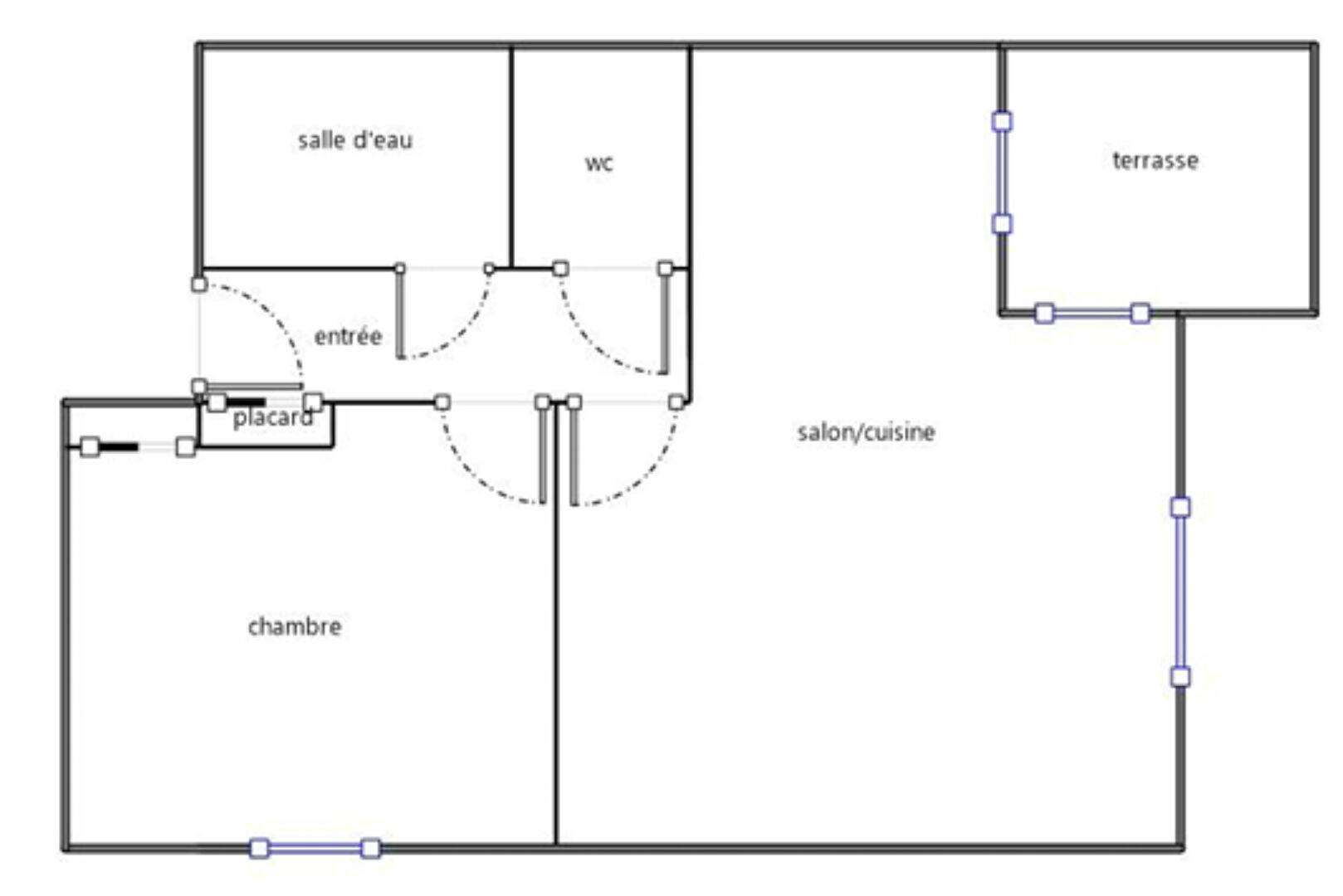
Photo Appartement 2 pièces de 43 m² avec terrasse et 2 parkings image 1/6
  • Prix
    250 000.00 €
  • Pays / Région
    France, Provence-Alpes-Côte d'Azur, Bouches-du-Rhône
  • Ville / Code postal
    Aix-en-Provence - 13100
  • Surface
    43 m²
  • Nombre de pièces

Quartier St Mitre idéalement placé à proximité immédiate de tous les commerces et du bus électrique l'Aixpress, nous vous proposons à la vente ce joli appartement T2 de 43 m² rénové avec gout qui se situe au 1er étage sur 2 sans ascenseur d'une copropriété fermée et bien entretenue datant de 1997. L'appartement comprend deux places de parking privatives en extérieur! Vous bénéficierez d'une belle pièce de vie de 26 m² avec une cuisine US entièrement équipée donnant sur une terrasse de 7 m², d'une chambre avec placard intégré, d'une salle d'eau et d'un WC séparé. Le chauffage est individuel électrique et les charges de copropriété sont de 86 euros/mois comprenant l'eau froide, les frais de syndic, la femme de ménage, l'entretien des espaces verts et le portail de la résidence. La taxe foncière est de 700 euros. DPE:C et GES: A "Prix honoraires Frais d'agence inclus" : 250 000 euros RCS Aix 814 576 997 00021 Copropriété de 1997 lots ().

 Faire suivre l'annonce
 Ajouter aux favoris
 Signaler l'annonce

Contacter l'annonceur par mail

Envoyer à
AIXTY - AIXTY
Objet
Re: Appartement 2 pièces de 43 m² avec terrasse et 2 parkings
AIXTY - AIXTY professionnel inscrit le 31/01/2016
Contacter par mail
Afficher le téléphone