A vendre T4 -80,87 m² dans résidence Neuve Livrée avec deux balcons

Réf. db8dbde2 | Publiée le 19/11/2025 par L'Adresse Carquefou - L'Adresse Carquefou | Mise à jour le 25/11/2025 | Visiteurs : 03
Photo A vendre T4 -80,87 m² dans résidence Neuve Livrée avec deux balcons image 1/4
  • Prix
    409 000.00 €
  • Pays / Région
    France, Pays de la Loire, Loire-Atlantique
  • Ville / Code postal
    Saint-Nazaire - 44600
  • Surface
    81 m²
  • Nombre de pièces

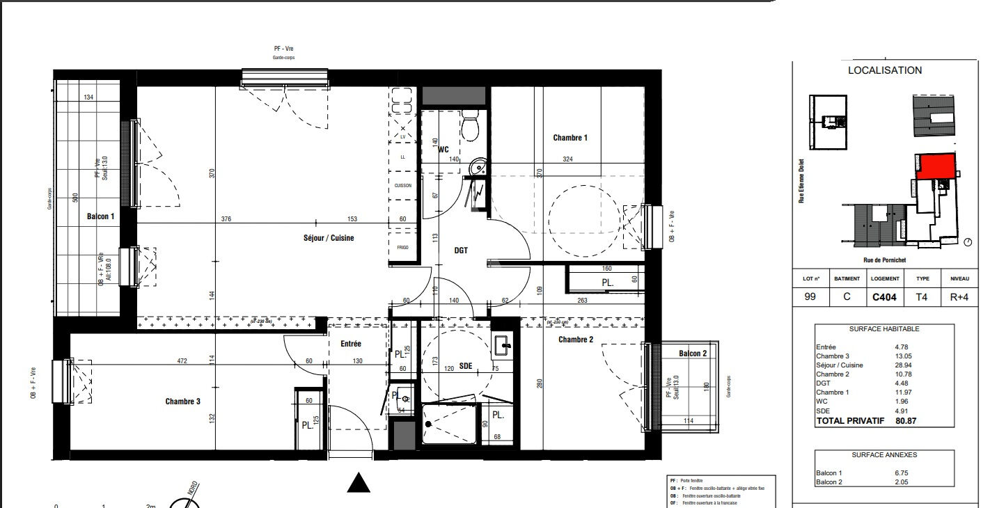
Découvrez une résidence neuve idéalement située à Saint-Nazaire, à deux pas du littoral et des plaisirs de la vie balnéaire. Entre plages accessibles à pied, commerces de proximité, transports et services du quotidien, profitez d'un cadre de vie exceptionnel où confort moderne et douceur de vivre se rencontrent. La résidence est livrée : il ne vous reste plus qu'à poser vos valises. Cet appartement T4 de 80,87 m² se situe au 4ème étage d'une résidence neuve livrée. Il s'ouvre sur une entrée de 4,78 m² équipée d'un placard. Le séjour-cuisine, d'une surface de 28,94 m², donne accès à un premier balcon de 6,75 m². L'appartement dispose de trois chambres : une première chambre de 11,97 m², une deuxième chambre de 10,78 m² qui bénéficie d'un accès direct à un second balcon de 2,05 m², et une troisième chambre de 13,05 m². Un dégagement de 4,48 m² dessert les différentes pièces. La salle d'eau mesure 4,91 m² et les WC sont séparés, pour une surface de 1,96 m². L'ensemble offre une distribution fonctionnelle, deux espaces extérieurs agréables et plusieurs rangements intégrés. La résidence est située à proximité des commodités et du littoral. Prix: 409 000 euros TTC FRAIS DE NOTAIRE OFFERT REF:34667OceC404 "Les informations sur les risques auxquels ce bien est exposé sont disponibles sur le site Géorisques : www.georisques.gouv.fr" Copropriété de 52 lots - dont 52 lots habitation.(Pas de procédure en cours).

 Faire suivre l'annonce
 Ajouter aux favoris
 Signaler l'annonce

Contacter l'annonceur par mail

Envoyer à
L'Adresse Carquefou - L'Adresse Carquefou
Objet
Re: A vendre T4 -80,87 m² dans résidence Neuve Livrée avec deux balcons
L'Adresse Carquefou - L'Adresse Carquefou professionnel inscrit le 23/12/2017
Contacter par mail
Afficher le téléphone