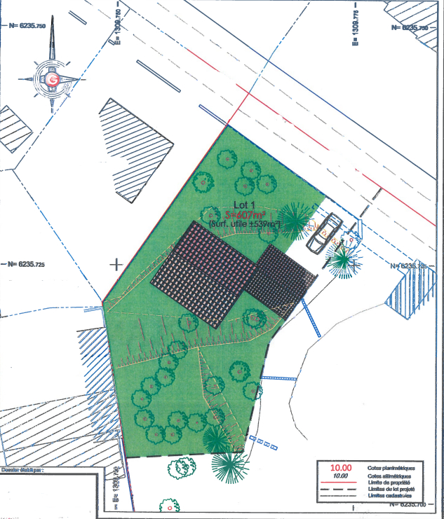
Terrain Saint Brevin L'Océan 607 m2

Réf. 75e67d59 | Publiée le 14/09/2023 par Agence-du-littoral.com - Agence-du-littoral.com | Mise à jour le 19/10/2025 | Visiteurs : 01
Photo Terrain Saint Brevin L'Océan 607 m2 image 1/6
  • Prix
    272 000.00 €
  • Pays / Région
    France, Pays de la Loire, Loire-Atlantique
  • Ville / Code postal
    Mindin - 44250
  • Surface
    607 m²

EXCLUSIVITE - SAINT BREVIN L'OCEAN - RARE SUR LE MARCHE ! A seulement 300m de la plage venez découvrir ce terrain constructible d'environ 607m² . Non viabilisé Façade de 17m Emprise au sol maximum : 121,40m² (4.62 % honoraires TTC à la charge de l'acquéreur.) Melody ROBIN (EI) Agent Commercial - Numéro RSAC : - .

 Faire suivre l'annonce
 Ajouter aux favoris
 Signaler l'annonce

Contacter l'annonceur par mail

Envoyer à
Agence-du-littoral.com - Agence-du-littoral.com
Objet
Re: Terrain Saint Brevin L'Océan 607 m2
Agence-du-littoral.com - Agence-du-littoral.com professionnel inscrit le 20/10/2024
Contacter par mail
Afficher le téléphone