Terrain Montreuil 117 m2

Réf. ca82b982 | Publiée le 25/06/2025 par L'Adresse pierre et patrimoine - L'ADRESSE Croix de Chavaux | Mise à jour le 29/11/2025 | Visiteurs : 03
Photo Terrain Montreuil 117 m2 image 1/2
  • Prix
    289 000.00 €
  • Pays / Région
    France, Île-de-France, Seine-Saint-Denis
  • Ville / Code postal
    Montreuil - 93100
  • Surface
    117 m²

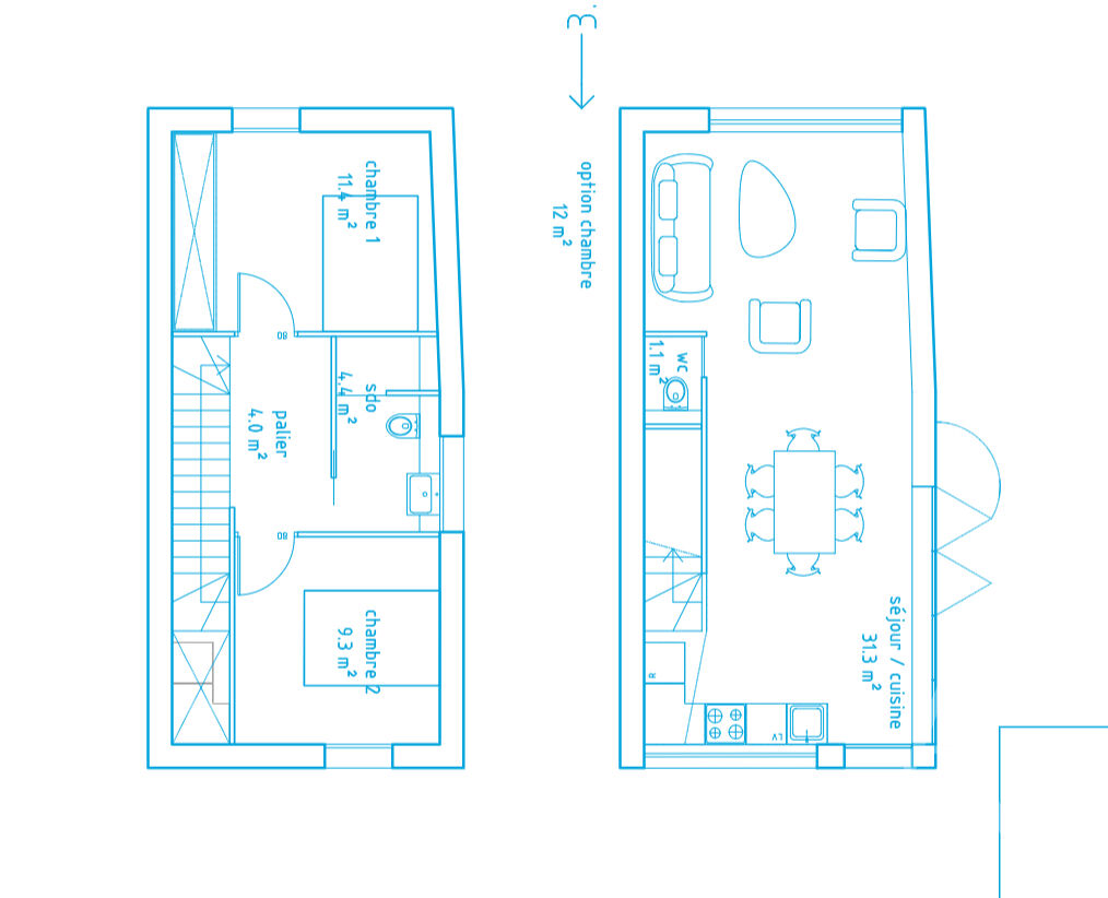
TERRAIN AVEC PERMIS DE CONSTRUIRE ACCORDÉ Situé à 7 minutes à pied du métro Mairie de Montreuil, dans un environnement résidentiel calme et familial, nous vous proposons un terrain de 117m2 sur lequel un projet de construction est autorisé (permis de construire accordé). Les caractéristiques du projet conçu par architecte : une maison d'une surface totale de 65m2 édifiée sur deux niveaux et comprenant au rez-de-chaussée un grand salon-séjour avec cuisine ouverte de 32m2 , un WC séparé. A l'étage deux chambres, dégagement, salle d'eau + WC. Le plan et l'agencement sont optimisés et sans perte de place. Le projet est conçu pour que la maison dispose de deux extérieurs avec deux ambiances. Un jardin à l'avant de 58m2 et une terrasse de 14m2. Demandez plus de renseignements au 01 48 58 64 24. Consultation du dossier de PC sur demande. (7.04 % honoraires TTC à la charge de l'acquéreur.)

 Faire suivre l'annonce
 Ajouter aux favoris
 Signaler l'annonce

Contacter l'annonceur par mail

Envoyer à
L'Adresse pierre et patrimoine - L'ADRESSE Croix de Chavaux
Objet
Re: Terrain Montreuil 117 m2
Contacter par mail
Afficher le téléphone