TERRAIN de 410m² avec Permis de Construire - ORLY

Réf. aa6f99bb | Publiée le 28/01/2025 par Cabinet Favreau - Cabinet Favreau Thiais | Mise à jour le 20/12/2025 | Visiteurs : 010
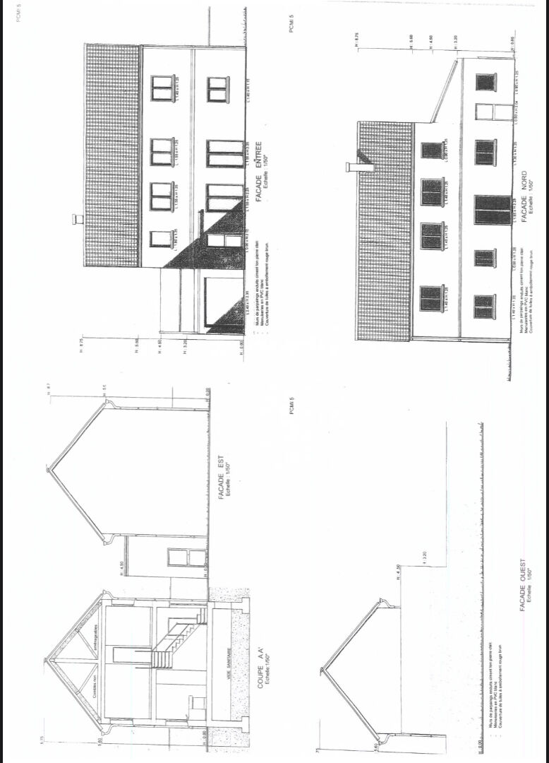
Photo TERRAIN de 410m² avec Permis de Construire - ORLY image 1/6
  • Prix
    213 000.00 €
  • Pays / Région
    France, Île-de-France, Val-de-Marne
  • Ville / Code postal
    Orly - 94310
  • Surface
    409 m²

Le Cabinet Favreau a le plaisir de vous faire découvrir ce terrain constructible et viabilisé, sur une rue pavillonnaire, calme et sécurisée. Un permis de construire est déjà validé pour la construction d'une maison. A proximité immédiate, du RER C Orly Ville, du métro 14 Thiais-Orly, et de toutes commodités. Elijah DUPUY (EI) Agent Commercial - Numéro RSAC : - .

 Faire suivre l'annonce
 Ajouter aux favoris
 Signaler l'annonce

Contacter l'annonceur par mail

Envoyer à
Cabinet Favreau - Cabinet Favreau Thiais
Objet
Re: TERRAIN de 410m² avec Permis de Construire - ORLY
Cabinet Favreau - Cabinet Favreau Thiais professionnel inscrit le 15/04/2016
Contacter par mail
Afficher le téléphone