Terrain Crozet 625 m2

Réf. 92db4984 | Publiée le 23/01/2025 par SERVICES IMMO GESSIEN | Mise à jour le 25/12/2025 | Visiteurs : 07
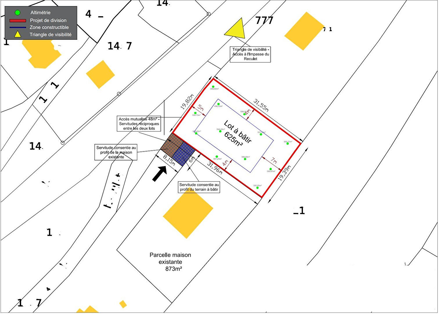
Photo Terrain Crozet 625 m2 image 1/3
  • Prix
    330 000.00 €
  • Pays / Région
    France, Rhône-Alpes, Ain
  • Ville / Code postal
    Crozet - 01170
  • Surface
    625 m²

Situation dominante à crozet, pour ce joli terrain de 625 m² viablisé libre constructeur avec vue sur les montagnes et prairies (Agricole protégé) . Il se situe en zone Ugp1. L'emprise au sol maximale des constructions est de 18 % de la superficie de l'unité foncière. * les honoraires de l'agence sont à la charge du vendeur

 Faire suivre l'annonce
 Ajouter aux favoris
 Signaler l'annonce

Contacter l'annonceur par mail

Envoyer à
SERVICES IMMO GESSIEN
Objet
Re: Terrain Crozet 625 m2
SERVICES IMMO GESSIEN professionnel inscrit le 22/03/2020
Contacter par mail
Afficher le téléphone