Terrain constructible / Bâtisse à rénover ou à démolir

Réf. cc8507e7 | Publiée le 12/06/2025 par Agence des forges Vallet - Agence des forges | Mise à jour le 10/11/2025 | Visiteurs : 03
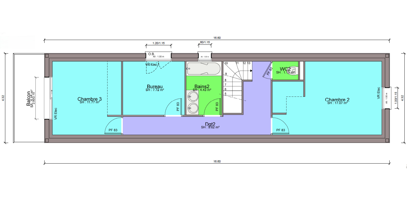
Photo Terrain constructible / Bâtisse à rénover ou à démolir image 1/6
  • Prix
    89 900.00 €
  • Pays / Région
    France, Pays de la Loire, Loire-Atlantique
  • Ville / Code postal
    Vallet - 44330
  • Surface
    100 m²

Située en centre-bourg de Vallet dans une rue calme et à proximité immédiate de toutes les commodités : Parcelle de terrain d'environ 121m² avec bâtisse (à réhabiliter ou à démolir) permettant une construction neuve d'environ 106m². Les plans proposés (suggestion) permettent d'envisager une maison avec étage proposant 3 chambres (dont 1 suite parentale avec salle d'eau) - un bureau - une pièce de vie d'environ 30m² - un cellier - une salle de bains - 2 wc - une courette à l'avant et une terrasse à l'arrière... Coût de revient de l'opération avec construction ne dépassant pas les 290.000 euros en tout. Permis de construire déjà accordé et transmissible. Plans disponibles. Tout à l'égout dans la rue - Tableau électrique existant... (6.39 % honoraires TTC à la charge de l'acquéreur.)

 Faire suivre l'annonce
 Ajouter aux favoris
 Signaler l'annonce

Contacter l'annonceur par mail

Envoyer à
Agence des forges Vallet - Agence des forges
Objet
Re: Terrain constructible / Bâtisse à rénover ou à démolir
Agence des forges Vallet - Agence des forges professionnel inscrit le 21/06/2020
Contacter par mail
Afficher le téléphone