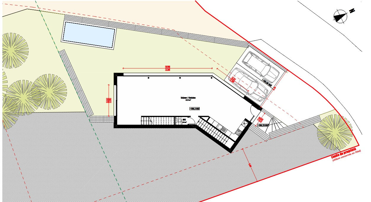
TERRAIN 1000 M² avec permis purgé pour une maison de 215 m² à ALLAUCH 13190

Réf. 0253ef90 | Publiée le 03/11/2025 par L'immobilière des Collines - L'Immobilière des Collines | Mise à jour le 08/11/2025 | Visiteurs : 03
Photo TERRAIN 1000 M²  avec permis purgé pour une maison de 215 m²  à  ALLAUCH 13190 image 1/4
  • Prix
    335 000.00 €
  • Pays / Région
    France, Provence-Alpes-Côte d'Azur, Bouches-du-Rhône
  • Ville / Code postal
    Allauch - 13190
  • Surface
    1000 m²

Très beau terrain avec vue dégagée à ALLAUCH 13190 d'une surface de 1000 m² avec un permis purgé pour une maison de 215 m². Piscine à débordement. Honoriaires charge vendeur Michel LEVY (EI) Agent Commercial - Numéro RSAC : 413 384 371 - MARSEILLE.

 Faire suivre l'annonce
 Ajouter aux favoris
 Signaler l'annonce

Contacter l'annonceur par mail

Envoyer à
L'immobilière des Collines - L'Immobilière des Collines
Objet
Re: TERRAIN 1000 M² avec permis purgé pour une maison de 215 m² à ALLAUCH 13190
Contacter par mail
Afficher le téléphone