 
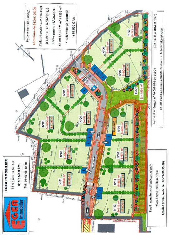
				Proximité de Pamiers En Ariège, à l'orée d'un sympathique village, à BEZAC, venez découvrir ce lotissement résidentiel de 12 parcelles qui seront entièrement viabilisées. EAU+EDF + PTT. Il faut prévoir une micro-station par parcelle au titre de l'assainissement individuel. Nous vous proposons le lot n° 2 d'une superficie de 984 m2 pour un prix de 60 000 euros. Cette parcelle est très bien située, mitoyenne des 2 côtés elle saura vous séduire!! BEZAC se situe à 6 kms de Pamiers où vous trouverez sur place tous les commerces ainsi que les écoles. Pour les amoureux de la nature et de la campagne!! Vous avez un projet de construction, n'hésitez pas à venir les visiter. Nous pourrons également vous apporter tous nos conseils!!