Projet d'immeuble à vendre

Réf. 06c6be4b | Publiée le 18/04/2024 par ERA BEAUSEJOUR - ERA BEAUSEJOUR | Mise à jour le 24/12/2025 | Visiteurs : 012
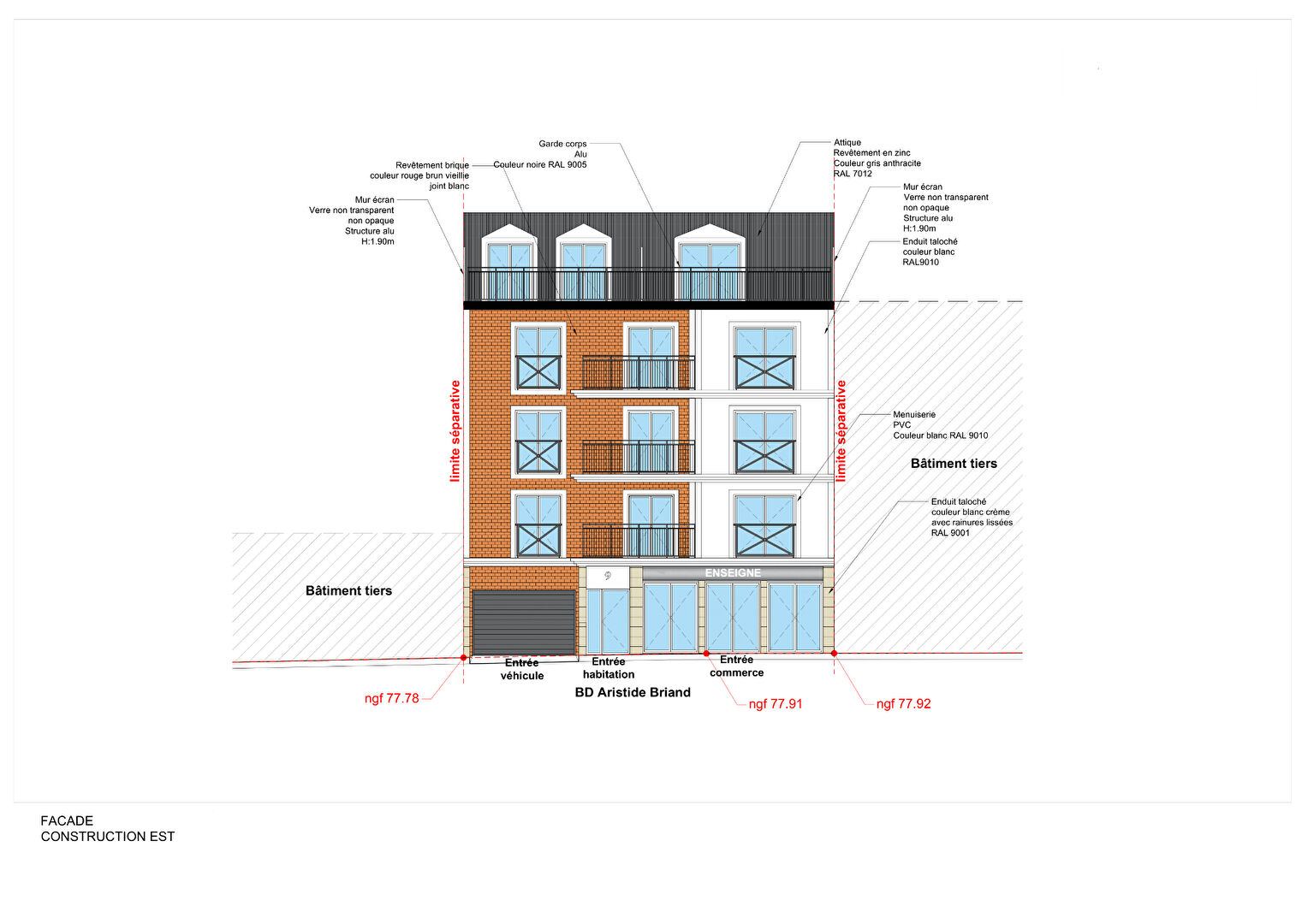
Photo Projet d'immeuble à vendre image 1/5
  • Prix
    577 500.00 €
  • Pays / Région
    France, Île-de-France, Essonne
  • Ville / Code postal
    Savigny-sur-Orge - 91600
  • Surface
    406 m²

A vendre à Savigny sur Orge un terrain constructible pour immeuble 3 étages R+3+A+SS sur deux niveaux. Projet d'immeuble déjà étudié, les plans sont également faits en respectant le PLU, permis déjà déposé. L'immeuble se compose de 10 logements, 1 commerce et 2 sous-sol. Il est divisé de la manière suivante : 3 studios, 3 F2 et 4 F3. Les 16 places de parking sont toutes prévues au sous-sol sur 2 niveaux. Opportunité rare. Contactez Athéna au 06.40.39.95.75 pour plus de renseignements. Athéna TESTA (EI) Agent Commercial - Numéro RSAC : 813748217 - .

 Faire suivre l'annonce
 Ajouter aux favoris
 Signaler l'annonce

Contacter l'annonceur par mail

Envoyer à
ERA BEAUSEJOUR - ERA BEAUSEJOUR
Objet
Re: Projet d'immeuble à vendre
ERA BEAUSEJOUR - ERA BEAUSEJOUR professionnel inscrit le 07/04/2023
Contacter par mail
Afficher le téléphone