Immeuble à Talence (Bordeaux) avec garage.

Réf. ee0465d1 | Publiée le 19/03/2025 par LE TOIT DU MONDE - LE TOIT DU MONDE | Mise à jour le 30/11/2025 | Visiteurs : 04
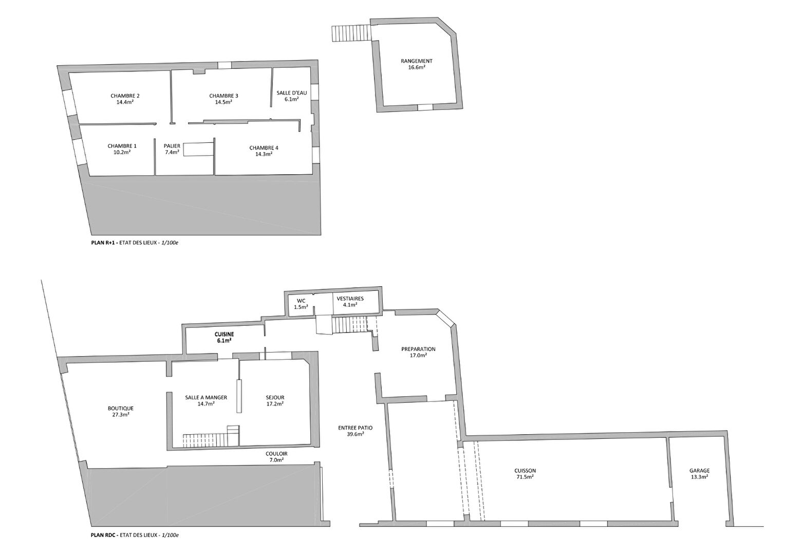
Photo Immeuble à Talence (Bordeaux) avec garage. image 1/6
  • Prix
    661 500.00 €
  • Pays / Région
    France, Aquitaine, Gironde
  • Ville / Code postal
    Talence - 33400
  • Surface
    285 m²
  • Nombre de pièces

A Talence, ville d'étudiant, agglomération de Bordeaux avec tram et commerces de proximité, venez découvrir ce beau potentiel pour cette belle surface de 285 m² à rénover. Ce bien de caractère est composé au rez-de-chaussée : -D'un grand local de 72 m² avec une grande vitrine (bonne visibilité commerciale) composé de plusieurs pièces, coin cuisine, Wc, arrière boutique. -Au 1er étage : Vous trouverez plusieurs pièces, pour son logement de fonction T3, d'une superficie de 67 m² avec salle d'eau et Wc Un accès indépendant à l'arrière du 1er bâtiment vous proposera au rez-de-chaussée : -Un plateau d'une surface de 74 m² pouvant laisser libre recours à votre imagination ou apporter une superficie supplémentaire au local existant. Egalement au rez-de-chaussée, en continuité des superficies précédentes, avec une entrée indépendante, vous trouverez : -Un plateau de 71.5 m² avec une belle hauteur sous plafond et son garage indépendant. Infos complémentaires : -Des travaux seront à prévoir. -Un seul compteur. -Plus d'infos sur demande (permis).

 Faire suivre l'annonce
 Ajouter aux favoris
 Signaler l'annonce

Contacter l'annonceur par mail

Envoyer à
LE TOIT DU MONDE - LE TOIT DU MONDE
Objet
Re: Immeuble à Talence (Bordeaux) avec garage.
LE TOIT DU MONDE - LE TOIT DU MONDE professionnel inscrit le 26/01/2017
Contacter par mail
Afficher le téléphone