 
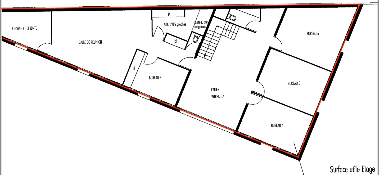
				A louer sur la commune déléguée de Seynod, un ensemble de bureaux sur 2 niveaux avec accueil, salle de réunion, deux WC, une douche, un coin cuisine, représentant une surface de 249 m² avec huit stationnements privatifs. Ces locaux sont situés à proximité de l'accès autoroutier d'Annecy Sud. Conditions financières : - Bail commercial - Loyer annuel hors charges 48600 euros HT - Dépôt de garantie 1 trimestre de loyer hors taxes et hors charges, - Taxe foncière en sus. - Honoraires agence : 16% HT du loyer annuel hors taxes hors charges Les informations sur les risques auxquels ce bien est exposé sont disponibles sur le site géorisques : www.georisques.gouv.fr